Выбран город Омск
Ваша корзина пуста

Серия 2.230-1 Детали стен и перегородок жилых и общественных зданий. Выпуск 6 Стены и перегородки с применением профильного стекла для крупнопанельных, каркасно-панельных и кирпичных зданий.

Описание

Введение
Настоящая работа выполнена на основе современного опыта типового проектирования и строительства с систематизацией имеющихся и внедряемых новых конструктивных решений и типизацией конструктивных деталей и узлов. Все эти материалы обобщены в альбомы типовых деталей, обязательных для применения в типовом и индивидуальном проектировании жилых и общественных зданий массового строительства. Ссылка на типовые детали должна заменить индивидуальную разработку их в проектах.
Альбомы типовых деталей призваны способствовать внедрению в практику массового строительства лучших и наиболее экономичных технических решений сопряжений и конструктивных элементов, способствовать сокращению количества индивидуальных проектных работ.
Настоящий альбом не является нормативным документом для проектирования и представляет собой рабочие чертежи типовых деталей (сопряжений) конструкций. Ссылка на рабочие чертежи данного альбома заменит необходимость разработки их в каждом конкретном проекте.
Отзывы, замечания и предложения по разработанным типовым деталям направлять по адресу: Москва, И-434, Дмитровское шоссе, д.9, корп. А, ЦНИИЭП учебных зданий.

Содержание – 3 стр

590 × 747 пикс.     Открыть в новом окне  
630 × 777 пикс.     Открыть в новом окне  
604 × 639 пикс.     Открыть в новом окне  

Пояснительная записка – 6 стр

Область применения профильного стекла

Выпускаемое в настоящее время стекольными заводами профильное стекло по своим теплозащитным свойствам может быть приравнено: профильное стекло швеллерного сечения к одинарному остеклению и профильное стекло коробчатого сечения к двойному остеклению.
Область его применения в жилых и общественных зданиях регламентируется «Рекомендации по проектированию и устройству ограждений из профильного стекла» 1969 г. и «Указаниями по применению профильного стекла в строительстве» СН 428-71.
Профильное стекло изготавливается бесцветным, окрашенным в массе (цветное) и с окисло-металлическим пленочным покрытием (солнцезащитное).
В жилых и общественных зданиях наружные ограждения из профильного стекла сплошного заполнения могут быть применены в помещениях, где не требуется зрительной связи с окружающим пространством (улицей); в помещениях с постоянным пребыванием людей целесообразно устраивать светопрозрачные ограждения из профильного стекла в сочетании с обычным остеклением ( в спаренных переплетах), служащим одновременно для проветривания помещений и зрительной связи с окружающим пространством.
В зависимости от температурно-влажностных условий и назначения помещения ограждения из профильного стекла допускается применять при перепадах температур, приведенных в таблице.
Допускаемые значения перепада температур между внутренним и наружным воздухом при относительной влажности воздуха внутри помещения 55%
707 × 582 пикс.     Открыть в новом окне  

Указания по применению и монтажу типовых деталей

В настоящий альбом включены детали наружных и внутренних ограждений с применением профильного стекла для кирпичных и крупноблочных жилых и общественных зданий, крупнопанельных жилых и каркасно-панельных общественных зданий в конструкциях серии ИИ-04.
Рабочие чертежи типовых деталей разработаны для применения при проектировании и строительстве жилых и общественных зданий в обычных условиях строительства.
Конструктивные решения типовых деталей являются результатом обобщения современного проектного материала и достижения строительной науки и практики.
В альбоме на листах 3-8, 46-51 на фрагментах фасадов, планов и разрезах дана маркировка типовых деталей. Приведенные планировочные решения не являются рабочими чертежами и служат только для примера и удобства подбора деталей. Данные типовые детали могут быть применены и для других планировочных решений.
На листах 9-38, 52-59 даны рабочие чертежи типовых деталей.
На листах 41-44 даны деревянные и металлические погонажные элементы обвязки наружного и внутреннего ограждений, рабочие чертежи которых определяются конкретным проектом и должны быть включены в состав проекта.
На рабочих чертежах обвязки блоков должна сохраняться принятая в настоящем альбоме маркировка позиций элементов обвязки, а в спецификации должны быть указаны их рабочие геометрические размеры.
На листах 45, 60 даны рабочие чертежи монтажных изделий, применяемых в разработанных деталях. Марки монтажных изделий и их количество должны быть включены в спецификацию проекта.
Изготовление деревянной и металлической обвязки блоков наружного и внутреннего ограждений предусмотрено в построичных условиях. Возможно изготовление их в заводских условиях и поставка на стройку без заполнения профильным стеклом. Разделительные экраны балконов, лоджий и экраны между входами в дом и в мусорокамеру изготовляются на строительной площадке с заполнением профильным стеклом и монтируются в готовом виде.
Для всех остальных случаев типовые детали альбома решены для поэлементного заполнения наружных и внутренних ограждений из профильного стекла. Типовые детали предусматривают в случае необходимости производить со стороны помещения замену поврежденного профильного стекла, для чего профильное стекло закрепляется съемными прижимными элементами вверху или внизу проема. Рекомендуется съемные прижимные элементы при больших размерах проемов изготовлять длиной не более 1,2 м.
Деревянные обвязки блоков наружных ограждений из профильного стекла крепятся в кирпичных стенах при помощи шурупов или костылей у деревянным пробкам, закладываемым в стены во время кладки: в каркасных и панельных зданиях крепятся аналогично к существующим в панелях деревянным пробкам; в конструкциях усовершенствованной серии ИИ-04 (где отсутствуют деревянные пробки) установка пробок в панелях выполняется по месту.
Не допускается расклинивание деревянной коробки профильного стекла в проеме во избежание искривления коробки; временное расклинивание во время монтажа допускается только в углах коробки.
Металлические обвязки блоков ограждений из профильного стекла крепятся к стенам, имеющим деревянные пробки при помощи шурупов или ершей, а в стенах, имеющих закладные детали при помощи приварки металлических монтажных марок, например, разделительные экраны.
Для герметизации воздушной полости коробчатого профильного стекла и защиты торцов стекла от механических повреждений при транспортировке и монтаже следует применять резиновые насадки типа 5 (см. лист2), поставляемые заводом-изготовителем совместно профильного стекла. При монтаже профильного стекла швеллерного сечения применяются насадки типа 7 (см. лист 2).
После установки не более пяти элементов профильного стекла в коробку производится обжатие пакета, после обжатия установленного пакета профильного стекла производится проверка вертикальности смонтированных элементов, а затем профильное стекло закрепляется прижимными деталями.
После установки в проем всех элементов профильного стекла стыки промазываются герметизирующим составом с применением пневмошприца.
Для герметизации стыков рекомендуется тиоколовые герметики марок ТУ-32 (МРТУ 6-07-103-63), ГС (ТУ 27/25-1-64), ТМ-05 (ТУ 38-3т в„–355-69) и замазка герметизирующая НГ-18 (МХП ТУ 2425-52). Работы по герметизации стыков мастиками следует производить при температуре наружного воздуха не ниже +5 МЉС в условиях, исключающих их увлажнение.
При выполнении работ по монтажу конструкций из стела профильного и герметизации стыков следует соблюдать соответствующие требования, изложенные в «Указаниях по применению стекла в строительстве» СН 428-71.
При разработке проекта с применением чертежей типовых деталей на чертежах проекта делать ссылку на марку детали по следующему образцу:
111 × 102 пикс.     Открыть в новом окне  
В числителе указан номер серии, в знаменателе: первое число-номер выпуска данной серии, второе число-номер типовой детали.
Обозначения типовых деталей на чертежах проектов, в отличие от прочих деталей, обводятся двойным кружком.
В проекте или серии проектов составляет сводная спецификация применяемых типовых деталей.
В данном альбоме приняты следующие условные обозначения:
336 × 80 пикс.     Открыть в новом окне  

Номенклатура профильного стекла – 12 стр

570 × 779 пикс.     Открыть в новом окне  

Типы уплотнителей и герметизирующих элементов – 13 стр

573 × 783 пикс.     Открыть в новом окне  

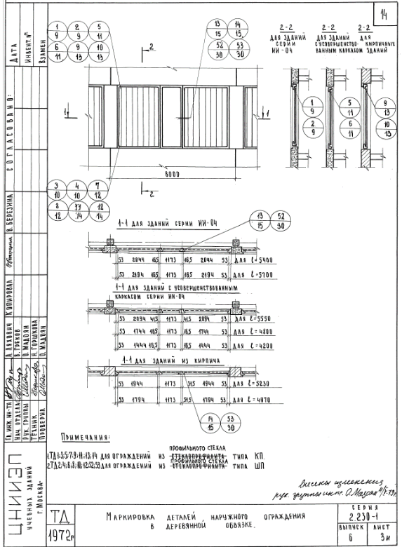
Маркировка деталей наружного ограждения в деревянной обвязке – 14 стр

573 × 780 пикс.     Открыть в новом окне  

Маркировка деталей наружного ограждения в металлической обвязке – 15 стр

573 × 780 пикс.     Открыть в новом окне  

Маркировка деталей наружного входа из профильного стекла коробчатого сечения – 16 стр

571 × 785 пикс.     Открыть в новом окне  

Маркировка деталей наружного входа из профильного стекла швеллерного сечения – 17 стр

573 × 788 пикс.     Открыть в новом окне  

Маркировка деталей устройства перегородок – 18 стр

576 × 780 пикс.     Открыть в новом окне  

Маркировка деталей устройства перегородок – 19 стр

568 × 785 пикс.     Открыть в новом окне  

Детали 1, 2 – 20 стр

572 × 784 пикс.     Открыть в новом окне  

Детали 3, 4 – 21 стр

572 × 787 пикс.     Открыть в новом окне  

Детали 5, 6 – 22 стр

569 × 785 пикс.     Открыть в новом окне  

Детали 7, 8 – 23 стр

569 × 784 пикс.     Открыть в новом окне  

Детали 9, 10 – 24 стр

570 × 789 пикс.     Открыть в новом окне  

Детали 11, 12 – 25 стр

569 × 783 пикс.     Открыть в новом окне  

Детали 13, 14 – 26 стр

570 × 790 пикс.     Открыть в новом окне  

Детали 15, 16 – 27 стр

573 × 787 пикс.     Открыть в новом окне  

Детали 17, 18 – 28 стр

570 × 783 пикс.     Открыть в новом окне  

Детали 19, 20 – 29 стр

567 × 785 пикс.     Открыть в новом окне  

Детали 21, 22 – 30 стр

569 × 789 пикс.     Открыть в новом окне  

Детали 23, 24 – 31 стр

538 × 788 пикс.     Открыть в новом окне  

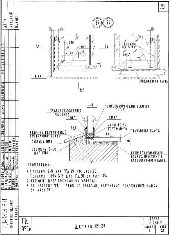
Детали 25, 26 – 32 стр

568 × 785 пикс.     Открыть в новом окне  

Детали 27-29 – 33 стр

568 × 787 пикс.     Открыть в новом окне  

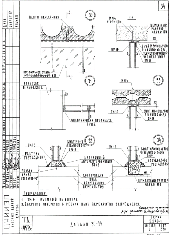
Детали 30-34 – 34 стр

576 × 787 пикс.     Открыть в новом окне  

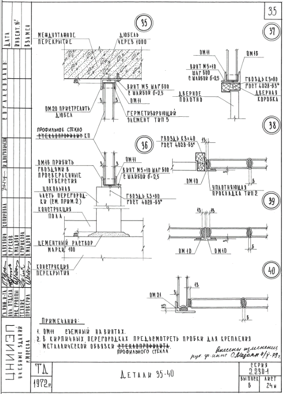
Детали 35-40 – 35 стр

567 × 786 пикс.     Открыть в новом окне  

Детали 41-45 – 36 стр

568 × 785 пикс.     Открыть в новом окне  

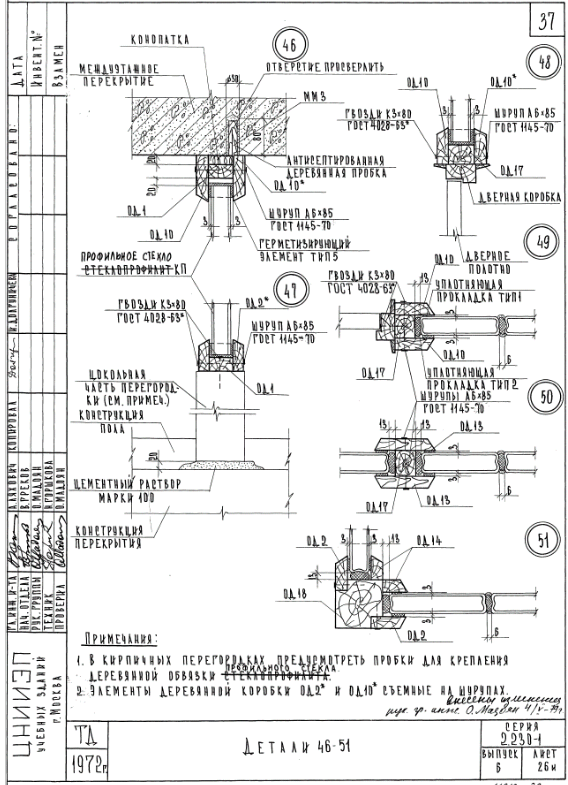
Детали 46-51 – 37 стр

568 × 785 пикс.     Открыть в новом окне  

Деталь 2. Разрезы 1-1 и 2-2. Деталь 4. Разрезы 3-3 – 38 стр

570 × 787 пикс.     Открыть в новом окне  

Деталь 6. Разрезы 1-1 и 2-2. Деталь 8. Разрезы 3-3 – 39 стр

574 × 785 пикс.     Открыть в новом окне  

Деталь 10. Разрезы 1-1 и 2-2. Деталь 12. Разрезы 3-3 –40 стр

572 × 783 пикс.     Открыть в новом окне  

Детали 52, 53 – 41 стр

575 × 786 пикс.     Открыть в новом окне  

Деталь 16. Разрезы 1-1 и 2-2. Деталь 18. Разрезы 3-3 –42 стр

572 × 784 пикс.     Открыть в новом окне  

Деталь 20. Разрезы 1-1 и 2-2. Деталь 22. Разрезы 3-3 –43 стр

567 × 788 пикс.     Открыть в новом окне  

Деталь 24. Разрезы 1-1 и 2-2. Деталь 26. Разрезы 3-3 –44 стр

576 × 779 пикс.     Открыть в новом окне  

Детали 54-58 – 45 стр

569 × 782 пикс.     Открыть в новом окне  

Детали 59-63 – 46 стр

565 × 785 пикс.     Открыть в новом окне  

Детали 64-69 – 47 стр

569 × 786 пикс.     Открыть в новом окне  

Детали 70-74 – 48 стр

571 × 787 пикс.     Открыть в новом окне  

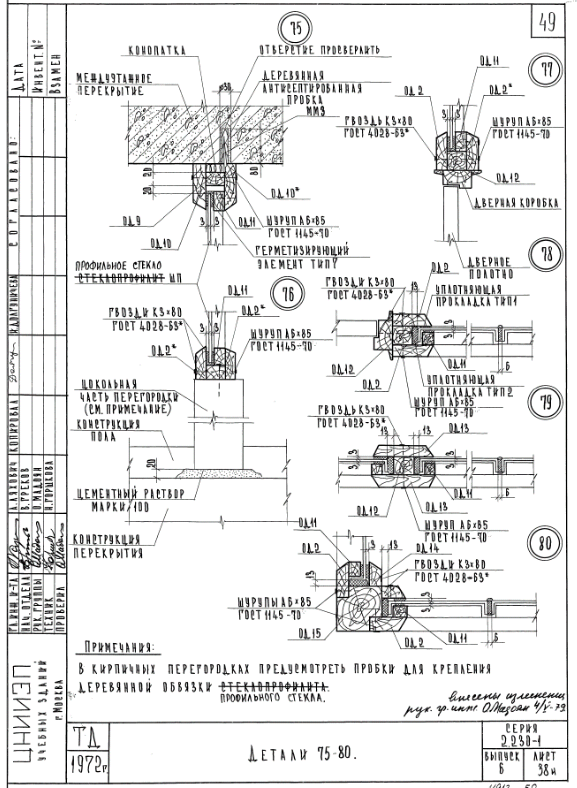
Детали 75-80 – 49 стр

577 × 788 пикс.     Открыть в новом окне  

Детали крепления подоконного слива – 50 стр

569 × 790 пикс.     Открыть в новом окне  

Узлы «А» -«Е» - 51 стр

575 × 782 пикс.     Открыть в новом окне  

Элементы деревянной обвязки профильного стекла – 52-55 стр

573 × 785 пикс.     Открыть в новом окне  
572 × 789 пикс.     Открыть в новом окне  
568 × 785 пикс.     Открыть в новом окне  
572 × 782 пикс.     Открыть в новом окне  

Монтажные металлические детали – 56 стр

574 × 786 пикс.     Открыть в новом окне  

Маркировка деталей установки разделительной стенки балкона (лоджии) – 57 стр

574 × 782 пикс.     Открыть в новом окне  

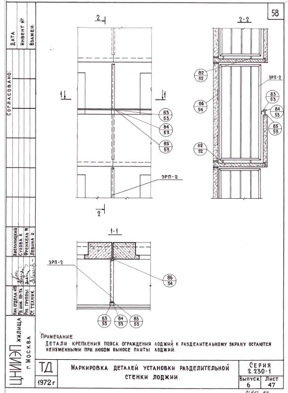
Маркировка деталей установки разделительной стенки лоджии – 58 стр

580 × 791 пикс.     Открыть в новом окне  

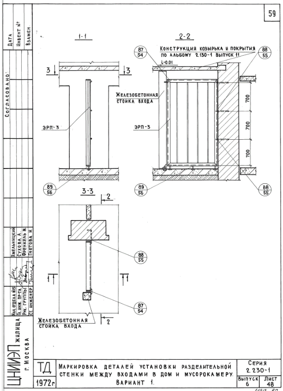
Маркировка деталей установки разделительной стенки между входами в дом и мусорокамеру. Вариант 1 – 59 стр

571 × 789 пикс.     Открыть в новом окне  

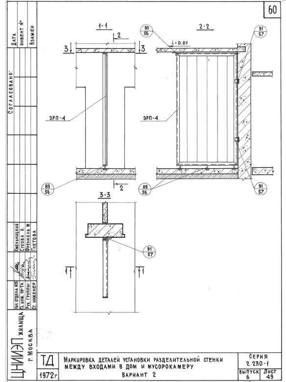
Маркировка деталей установки разделительной стенки между входами в дом и мусорокамеру. Вариант 2 – 60 стр

584 × 781 пикс.     Открыть в новом окне  

Маркировка деталей установки оконного блока ОНП-1 и ОНП-2 в лестничной клетке крупнопанельного дома – 61 стр

575 × 783 пикс.     Открыть в новом окне  

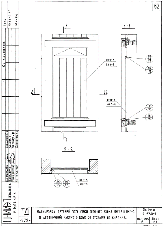
Маркировка деталей установки оконного блока ОНП-3 и ОНП-4 в лестничной клетке в доме со стенами из кирпича – 62 стр

573 × 787 пикс.     Открыть в новом окне  

Детали 81, 82 – 63 стр

564 × 791 пикс.     Открыть в новом окне  

Детали 83, 84, 85 – 64 стр

578 × 785 пикс.     Открыть в новом окне  

Детали 86, 87 – 65 стр

578 × 784 пикс.     Открыть в новом окне  

Деталь 88 – 66 стр

572 × 786 пикс.     Открыть в новом окне  

Детали 89, 90 – 67 стр

580 × 776 пикс.     Открыть в новом окне  

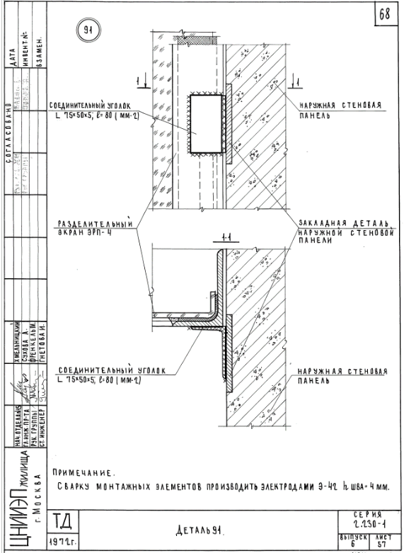
Деталь 91 – 68 стр

571 × 781 пикс.     Открыть в новом окне  

Детали 92, 93, 94 – 69 стр

575 × 786 пикс.     Открыть в новом окне  

Детали 95, 96, 97 – 70 стр

577 × 785 пикс.     Открыть в новом окне  

Таблица монтажных элементов – 71 стр

575 × 778 пикс.     Открыть в новом окне (

Классы

Выбранные классы объекта Строительные материалы

Продукция

Подождите идет загрузка ....

Присоединяйтесь к рассылке!

Оформляя подписку, вы принимаете политику конфиденциальности ЖБИ-СНГ.ру