Выбран город Омск
Ваша корзина пуста

Серия 1.020-1/87 Конструкции каркаса межвидового применения для многоэтажных общественных зданий, производственных и вспомогательных зданий промышленных предприятий. Выпуск 2-10 Колонны для зданий с высотой этажей 6,0; 5,4 и 6,0 (7,2) м. Пространственные

Описание

Рабочие чертежи

Содержание – 2 стр

998 × 675 пикс.     Открыть в новом окне  
998 × 680 пикс.     Открыть в новом окне  
1000 × 683 пикс.     Открыть в новом окне  

Технические требования – 5 стр

Настоящий выпуск содержит рабочие чертежи пространственных каркасов колонн сечением 400х400 мм выпуска 2-9.
Пространственные каркасы собираются из отдельных стержней, замкнутых хомутов, сеток косвенного армирования и закладных изделий при помощи контактной сварки.
Сварка стержней выполняется в соответствии с требованиями ГОСТ 14098-85 для соединений с нормируемой прочностью.
В зависимости от расчетных усилий предусмотрено изменение армирования пространственного каркаса по его длине обрывом продольной арматуры в вышерасположенных этажах колонны.
Диагональные связи должны привариваться к стержням продольной арматуры протяженными швами, длина швов не менее 5-ти диаметров арматуры связи.
Закладные изделия МН-5…МН-12 должны быть зафиксированы в проектном положении в форме
Закладные изделия МН-2 привариваются к продольным стержням пространственного каркаса дуговой сваркой односторонним швом.
Сборку пространственных каркасов рекомендуется производить на автоматизированных линиях согласно указаниям выпуска 0-7 «Указания по заводской технологии изготовления изделий».
Перечень выпусков, входящих в серию 1.020-1/87 приведен в выпуске 0-0.

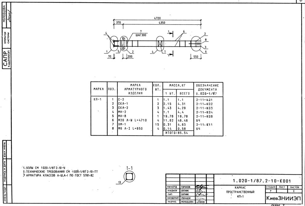
Каркас пространственный КП-1 – 6 стр

992 × 670 пикс.     Открыть в новом окне  

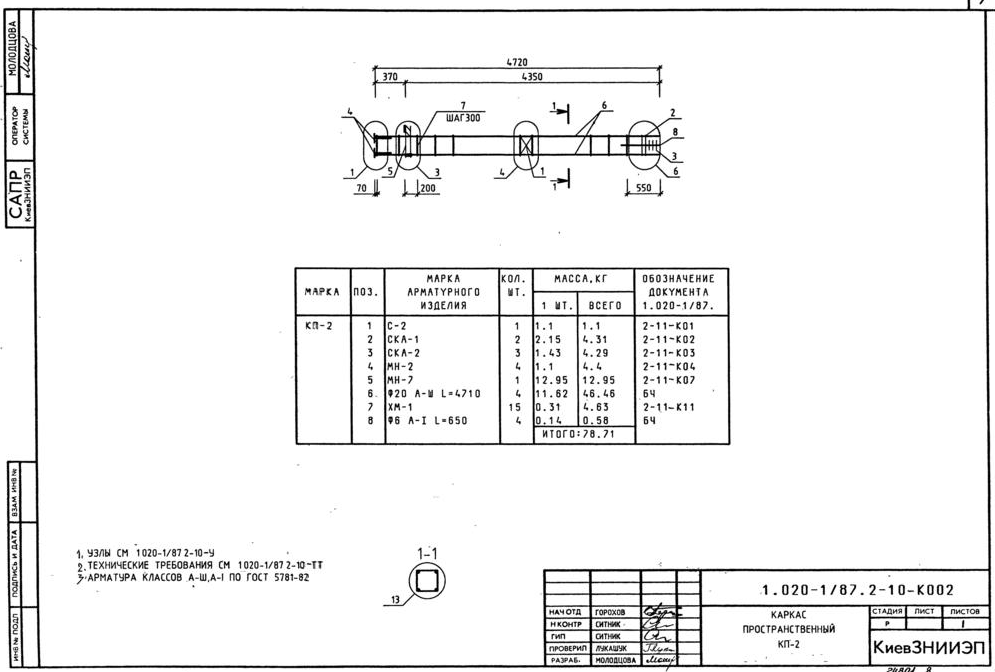
Каркас пространственный КП-2 – 7 стр

995 × 672 пикс.     Открыть в новом окне  

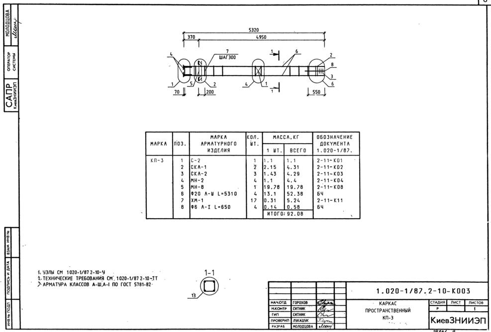
Каркас пространственный КП-3 – 8 стр

987 × 668 пикс.     Открыть в новом окне  

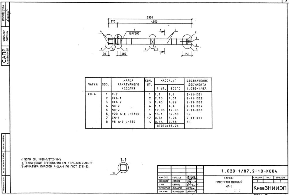
Каркас пространственный КП-4 – 9 стр

991 × 671 пикс.     Открыть в новом окне  

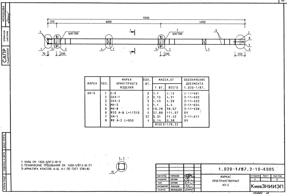
Каркас пространственный КП-5 – 10 стр

998 × 675 пикс.     Открыть в новом окне  

Каркас пространственный КП-6 – 11 стр

995 × 666 пикс.     Открыть в новом окне  

Каркас пространственный КП-7 – 12 стр

996 × 672 пикс.     Открыть в новом окне  

Каркас пространственный КП-8, КП-9 – 13 стр

992 × 660 пикс.     Открыть в новом окне  

Каркас пространственный КП-10 – 14 стр

997 × 673 пикс.     Открыть в новом окне  

Каркас пространственный КП-11 – 15 стр

998 × 668 пикс.     Открыть в новом окне  

Каркас пространственный КП-12 – 16 стр

997 × 672 пикс.     Открыть в новом окне  

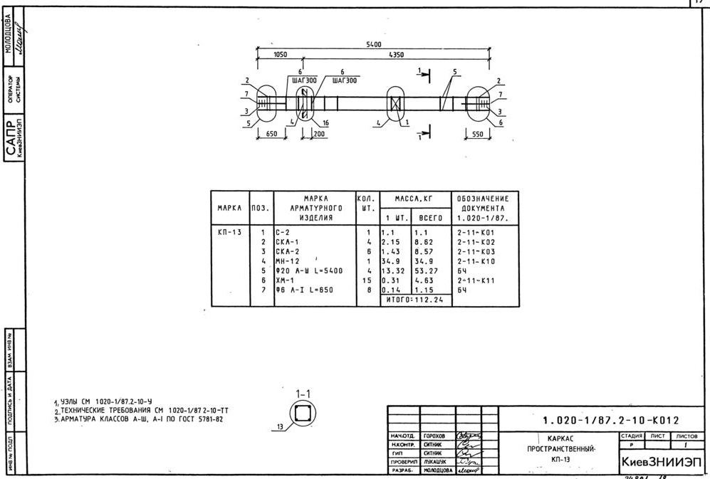
Каркас пространственный КП-13 – 17 стр

997 × 673 пикс.     Открыть в новом окне  

Каркас пространственный КП-14 – 18 стр

1000 × 671 пикс.     Открыть в новом окне  

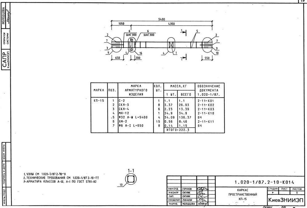
Каркас пространственный КП-15 – 19 стр

996 × 673 пикс.     Открыть в новом окне  

Каркас пространственный КП-16 – 20 стр

992 × 664 пикс.     Открыть в новом окне  

Каркас пространственный КП-17 – 21 стр

1000 × 669 пикс.     Открыть в новом окне  

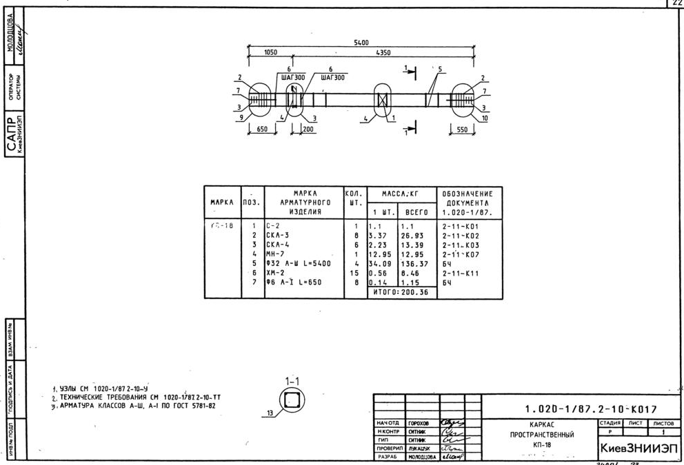
Каркас пространственный КП-18 – 22 стр

992 × 675 пикс.     Открыть в новом окне  

Каркас пространственный КП-19 – 23 стр

991 × 675 пикс.     Открыть в новом окне  

Каркас пространственный КП-20 – 24 стр

997 × 673 пикс.     Открыть в новом окне  

Каркас пространственный КП-21 – 25 стр

1000 × 669 пикс.     Открыть в новом окне  

Каркас пространственный КП-22 – 26 стр

997 × 680 пикс.     Открыть в новом окне  

Каркас пространственный КП-23 – 27 стр

997 × 666 пикс.     Открыть в новом окне  

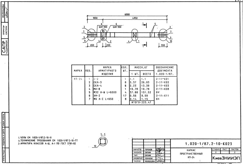
Каркас пространственный КП-24 – 28 стр

992 × 669 пикс.     Открыть в новом окне  

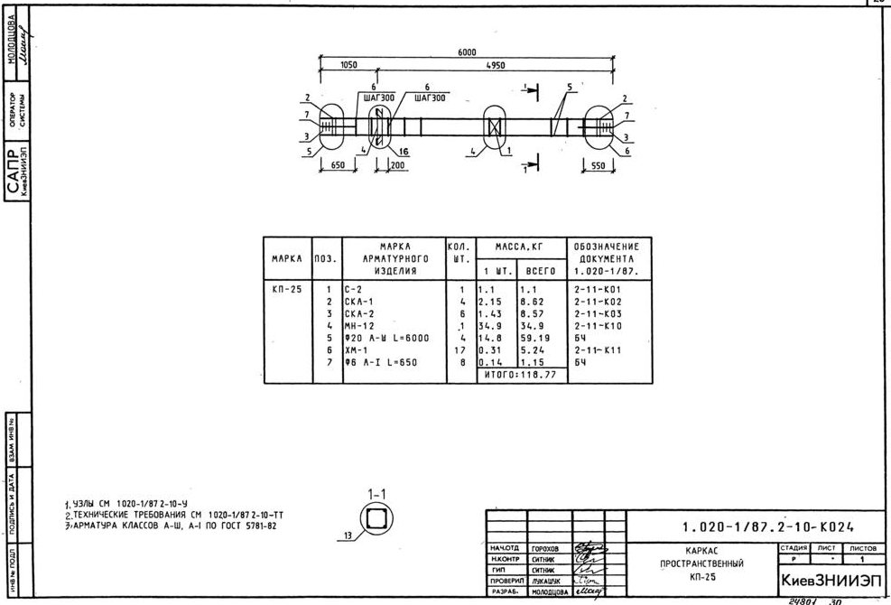
Каркас пространственный КП-25 – 29 стр

987 × 670 пикс.     Открыть в новом окне  

Каркас пространственный КП-26 – 30 стр

995 × 663 пикс.     Открыть в новом окне  

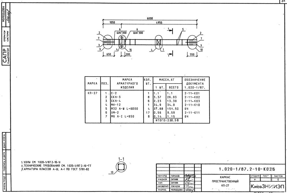
Каркас пространственный КП-27 – 31 стр

996 × 671 пикс.     Открыть в новом окне  

Каркас пространственный КП-28 – 32 стр

984 × 666 пикс.     Открыть в новом окне  

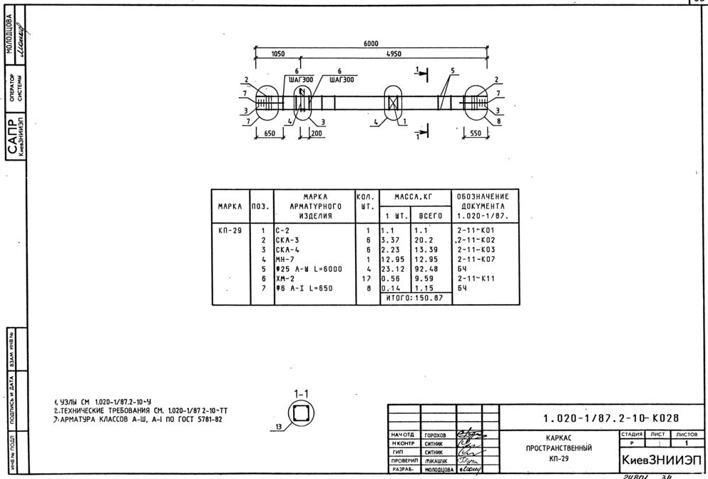
Каркас пространственный КП-29 – 33 стр

993 × 671 пикс.     Открыть в новом окне  

Каркас пространственный КП-30 – 34 стр

994 × 669 пикс.     Открыть в новом окне  

Каркас пространственный КП-31 – 35 стр

995 × 676 пикс.     Открыть в новом окне  

Каркас пространственный КП-32 – 36 стр

993 × 670 пикс.     Открыть в новом окне  

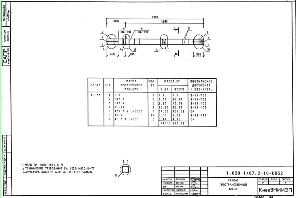
Каркас пространственный КП-33 – 37 стр

1004 × 672 пикс.     Открыть в новом окне  

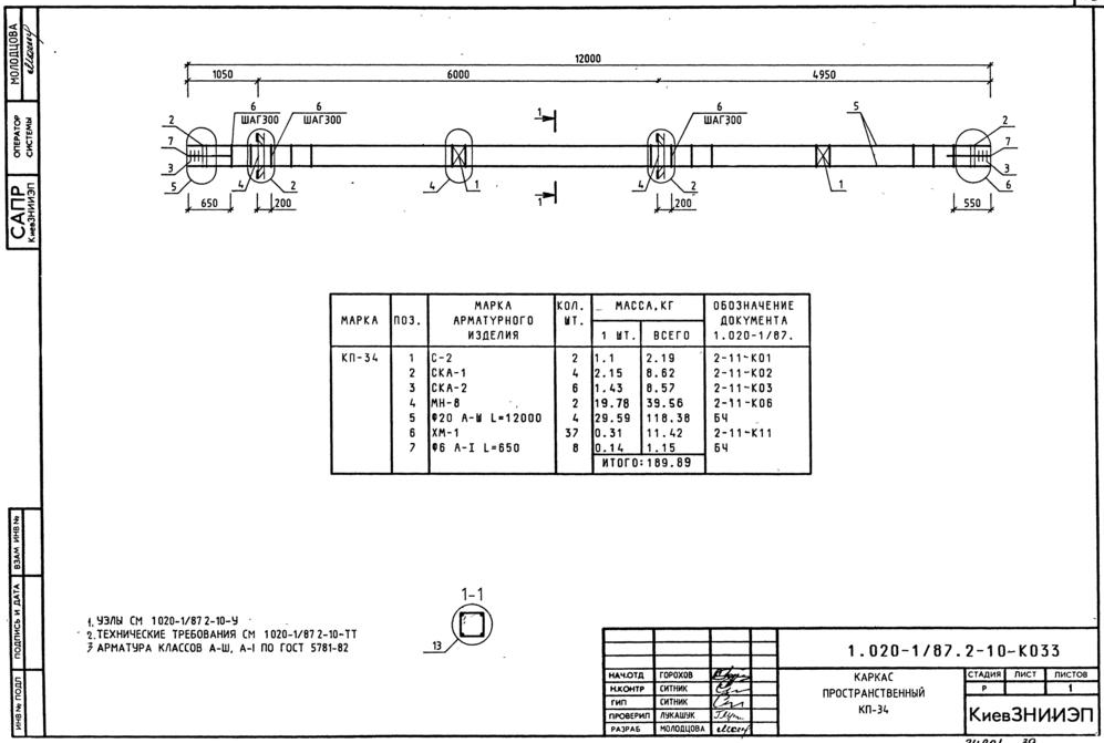
Каркас пространственный КП-34 – 38 стр

997 × 671 пикс.     Открыть в новом окне  

Каркас пространственный КП-35 – 39 стр

998 × 675 пикс.     Открыть в новом окне  

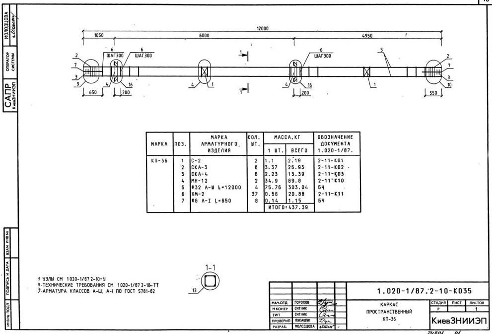
Каркас пространственный КП-36 – 40 стр

991 × 673 пикс.     Открыть в новом окне  

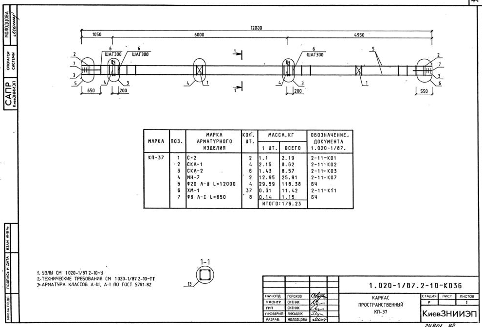
Каркас пространственный КП-37 – 41 стр

990 × 673 пикс.     Открыть в новом окне  

Каркас пространственный КП-38 – 42 стр

998 × 671 пикс.     Открыть в новом окне  

Каркас пространственный КП-39 – 43 стр

1002 × 670 пикс.     Открыть в новом окне  

Каркас пространственный КП-40, КП-41 – 44 стр

995 × 676 пикс.     Открыть в новом окне  

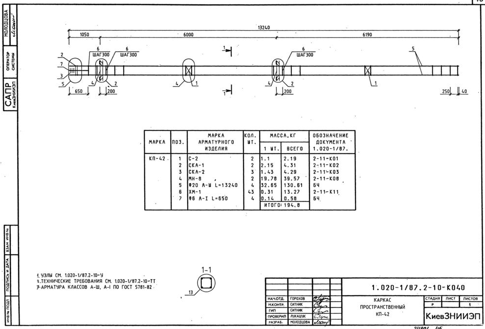
Каркас пространственный КП-42 – 45 стр

992 × 674 пикс.     Открыть в новом окне  

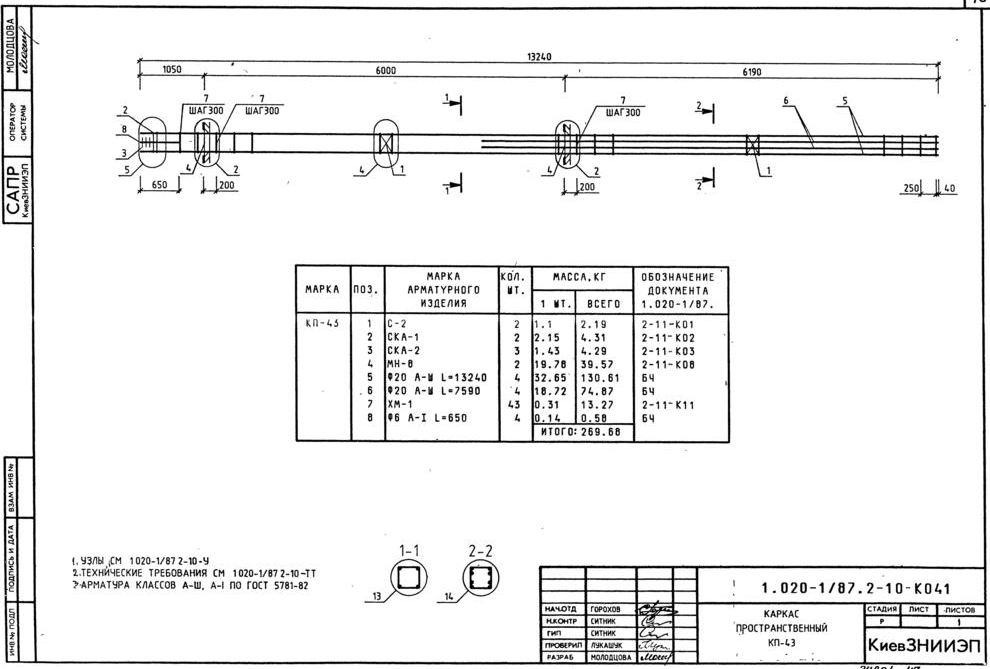
Каркас пространственный КП-43 – 46 стр

990 × 669 пикс.     Открыть в новом окне  

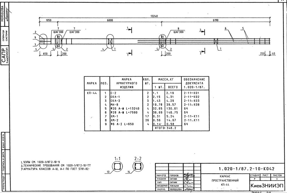
Каркас пространственный КП-44 – 47 стр

993 × 670 пикс.     Открыть в новом окне  

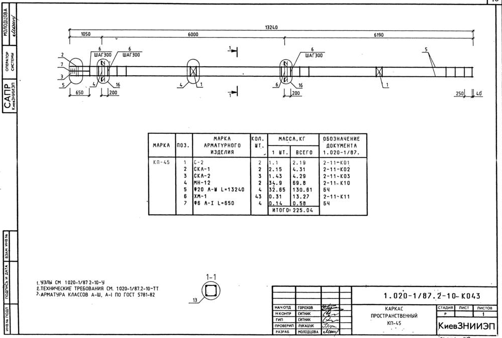
Каркас пространственный КП-45 – 48 стр

994 × 669 пикс.     Открыть в новом окне  

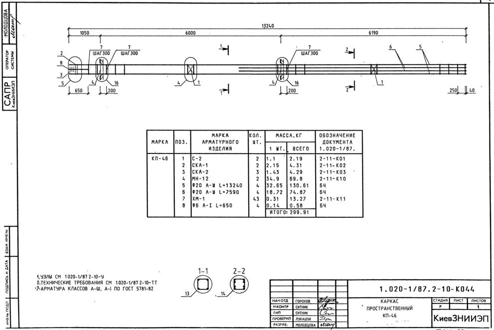
Каркас пространственный КП-46 – 49 стр

989 × 662 пикс.     Открыть в новом окне  

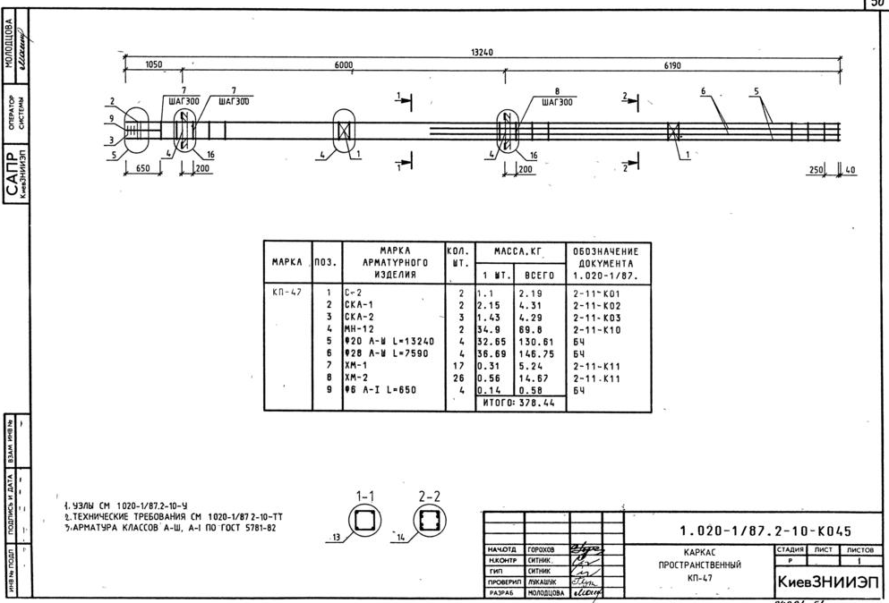
Каркас пространственный КП-47 – 50 стр

993 × 674 пикс.     Открыть в новом окне  

Каркас пространственный КП-48 – КП-50 – 51 стр

993 × 665 пикс.     Открыть в новом окне  

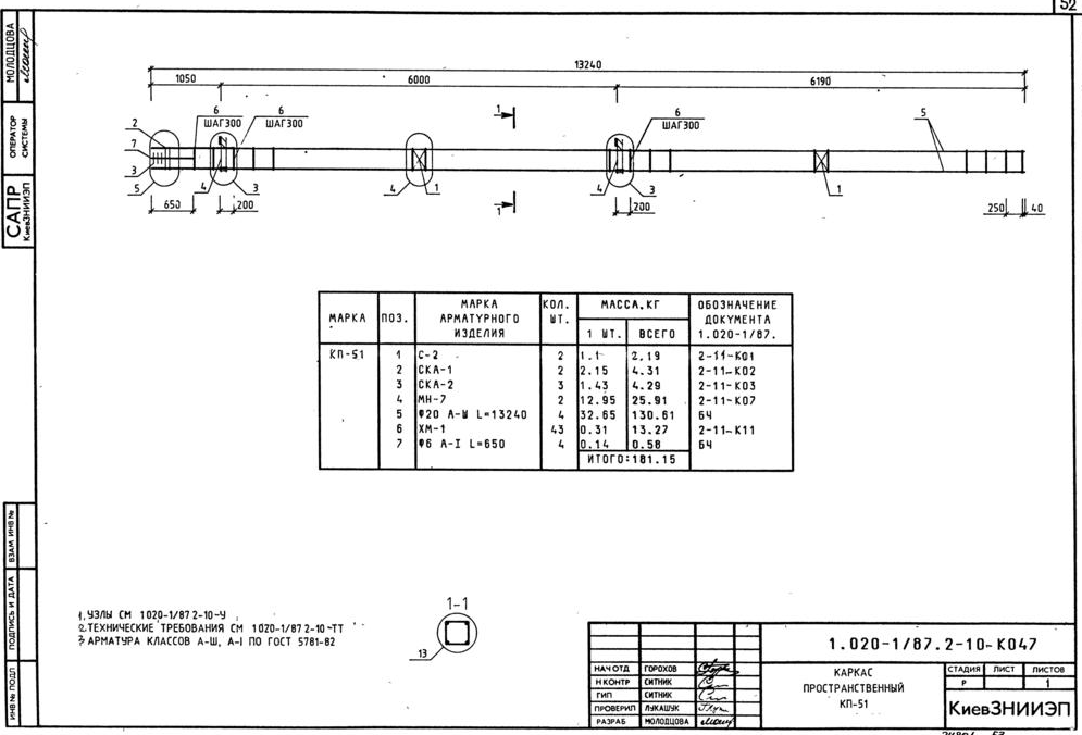
Каркас пространственный КП-51 – 52 стр

995 × 676 пикс.     Открыть в новом окне  

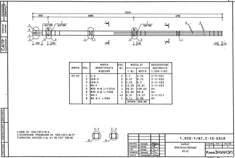
Каркас пространственный КП-52 – 53 стр

994 × 669 пикс.     Открыть в новом окне  

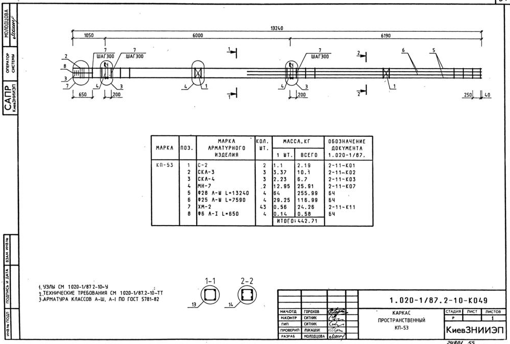
Каркас пространственный КП-53 – 54 стр

993 × 671 пикс.     Открыть в новом окне  

Каркас пространственный КП-53 – 54 стр

993 × 671 пикс.     Открыть в новом окне  

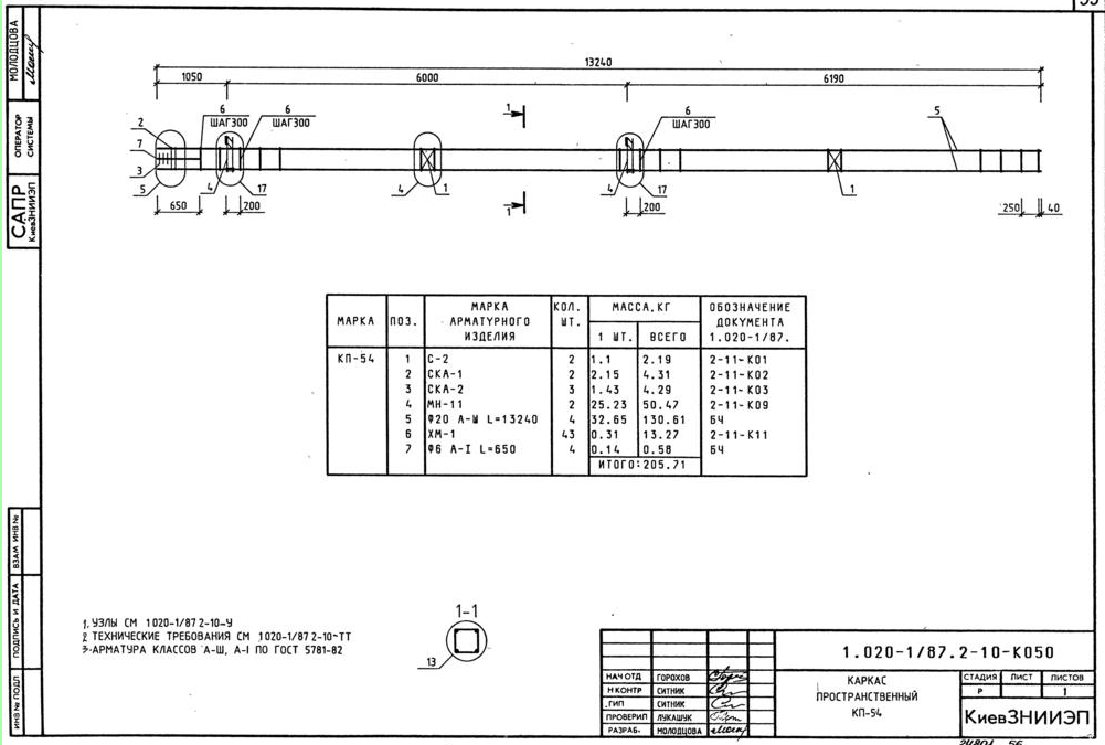
Каркас пространственный КП-54 – 55 стр

1001 × 675 пикс.     Открыть в новом окне  

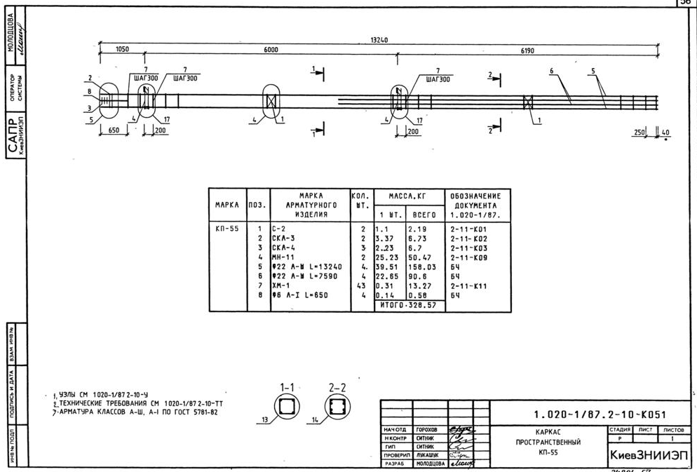
Каркас пространственный КП-55 – 56 стр

994 × 673 пикс.     Открыть в новом окне  

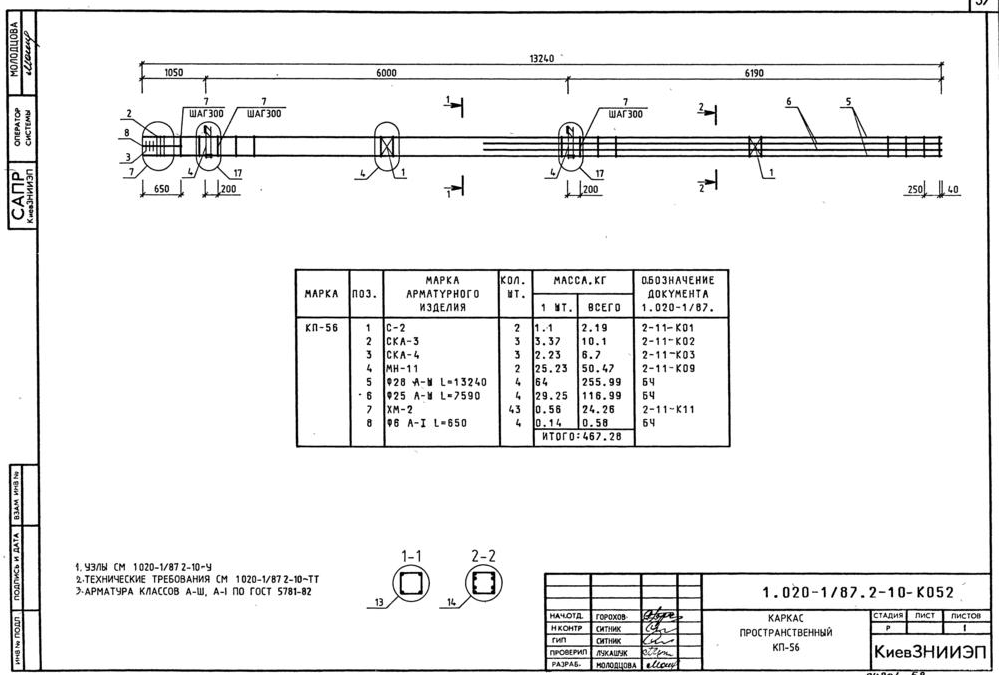
Каркас пространственный КП-56 – 57 стр

999 × 675 пикс.     Открыть в новом окне  

Каркас пространственный КП-57, КП-58 – 58 стр

996 × 675 пикс.     Открыть в новом окне  

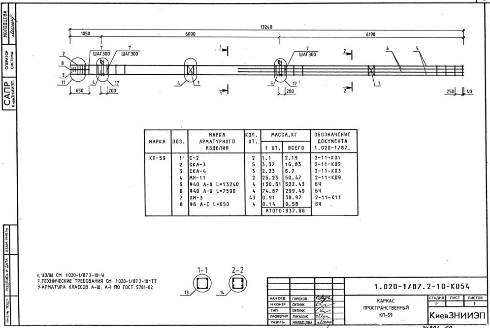
Каркас пространственный КП-59 – 59 стр

995 × 667 пикс.     Открыть в новом окне  

Каркас пространственный КП-60 – 60 стр

994 × 668 пикс.     Открыть в новом окне  

Каркас пространственный КП-61 – 61 стр

993 × 674 пикс.     Открыть в новом окне  

Каркас пространственный КП-62 – 62 стр

995 × 669 пикс.     Открыть в новом окне  

Каркас пространственный КП-63 – 63 стр

997 × 668 пикс.     Открыть в новом окне  

Каркас пространственный КП-64 – 64 стр

987 × 662 пикс.     Открыть в новом окне  

Каркас пространственный КП-65 – 65 стр

1003 × 669 пикс.     Открыть в новом окне  

Каркас пространственный КП-66, КП-67 – 66 стр

984 × 672 пикс.     Открыть в новом окне  

Каркас пространственный КП-68 – 67 стр

990 × 664 пикс.     Открыть в новом окне  

Каркас пространственный КП-69 – 68 стр

993 × 673 пикс.     Открыть в новом окне  

Каркас пространственный КП-70 – 69 стр

Каркас пространственный КП-71 – 70 стр

999 × 666 пикс.     Открыть в новом окне  

Каркас пространственный КП-72 – 71 стр

993 × 669 пикс.     Открыть в новом окне  

Каркас пространственный КП-73 – 72 стр

991 × 678 пикс.     Открыть в новом окне  

Каркас пространственный КП-74, КП-75 – 73 стр

992 × 668 пикс.     Открыть в новом окне  

Каркас пространственный КП-76 – 74 стр

995 × 660 пикс.     Открыть в новом окне  

Каркас пространственный КП-77 – 75 стр

999 × 667 пикс.     Открыть в новом окне  

Каркас пространственный КП-78, КП-79 – 76 стр

992 × 671 пикс.     Открыть в новом окне  

Каркас пространственный КП-80, КП-81 – 77 стр

996 × 672 пикс.     Открыть в новом окне  

Каркас пространственный КП-82 - КП-84 – 78 стр

999 × 667 пикс.     Открыть в новом окне  

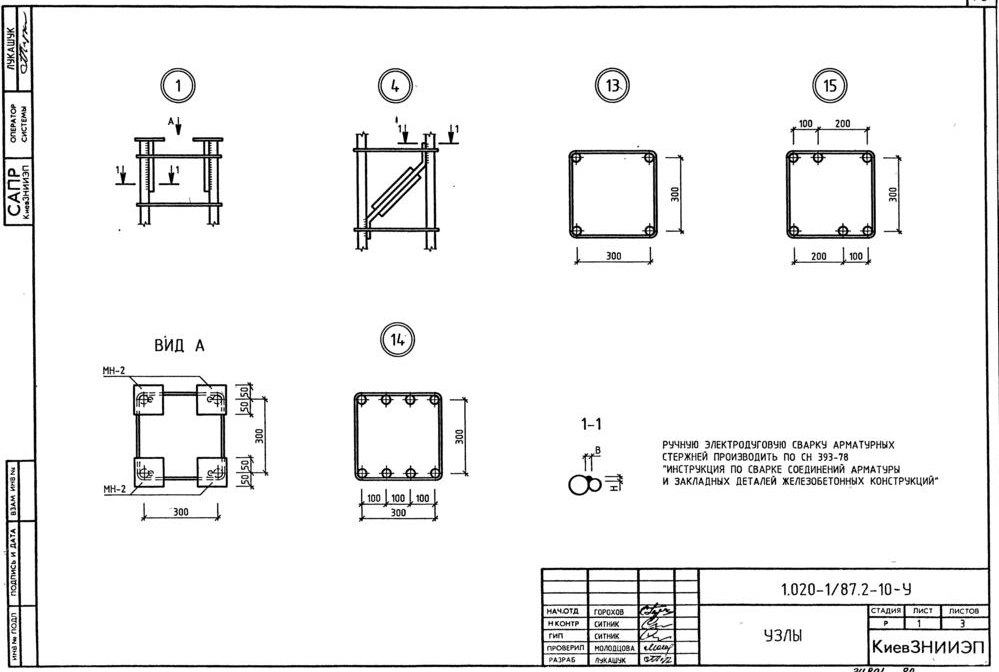
Узлы – 79 стр

999 × 672 пикс.     Открыть в новом окне  
999 × 669 пикс.     Открыть в новом окне  
994 × 671 пикс.     Открыть в новом окне (

Классы

Выбранные классы объекта Строительные материалы

Продукция

Подождите идет загрузка ....

Присоединяйтесь к рассылке!

Оформляя подписку, вы принимаете политику конфиденциальности ЖБИ-СНГ.ру