Выбран город Омск
Ваша корзина пуста

Серия 1.020-1/87 Конструкции каркаса межвидового применения для многоэтажных общественных зданий, производственных и вспомогательных зданий промышленных предприятий. Выпуск 2-11 Колонны. Арматурные и закладные изделия.

Описание

Рабочие чертежи

Содержание – 2 стр

990 × 686 пикс.     Открыть в новом окне  
496 × 678 пикс.     Открыть в новом окне  

Технические требования – 3 стр

Настоящий выпуск содержит рабочие чертежи арматурных сеток и закладных изделий для серии 1.020-1/87, рассчитанных на серийное изготовление на типовом и нестандартном оборудовании заводов ЖБК и специализированных механических заводах.
Изготовление арматурных изделий должно производиться в соответствии с:
- ГОСТ 10922-75 «Арматурные детали сварные для железобетонных изделий и конструкций. Технические требования и методы испытаний»
- ГОСТ 14098-85 «Соединения сварные арматуры и закладных изделий железобетонных конструкций»
- СНиП 3.03.01-87 «Несущие и ограждающие конструкции»
- «Указания по заводской технологии изготовления изделий», вып. 0-7
Применение ручной дуговой сварки тавровых соединений закладных изделий не допускается
Дуговая сварка крестообразных соединений не допускается
Испытание сварных соединений арматуры и закладных изделий на растяжение обязательно.
Перечень выпусков, входящих в состав сварки серии 1.020-1/87 приведен в выпуске 0-0.

Сетка С-2; Сетка косвенного армирования СКА-1, СКА-3 – 4 стр

980 × 678 пикс.     Открыть в новом окне  

Сетка косвенного армирования СКА-2, СКА-4; Изделие закладное МН-2 – 5 стр

980 × 670 пикс.     Открыть в новом окне  

Изделие закладное МН-5; Изделие закладное МН-6 – 6 стр

981 × 681 пикс.     Открыть в новом окне  

Изделие закладное МН-7; Изделие закладное МН-8 – 7 стр

989 × 676 пикс.     Открыть в новом окне  

Изделие закладное МН-11; Изделие закладное МН-12 – 8 стр

990 × 669 пикс.     Открыть в новом окне  

Стержень гнутый ХМ-1, ХМ-2, ХМ-3, СГ-1, СГ-2; Пластина П-1, П-2 – 9 стр

985 × 677 пикс.     Открыть в новом окне  

Изделие закладное МН-13; Изделие закладное МН-14 – 10 стр

984 × 676 пикс.     Открыть в новом окне  

Изделие закладное МН-15; Изделие закладное МН-16 – 11 стр

989 × 685 пикс.     Открыть в новом окне  

Изделие закладное МН-15; Изделие закладное МН-16 – 12 стр

989 × 677 пикс.     Открыть в новом окне  

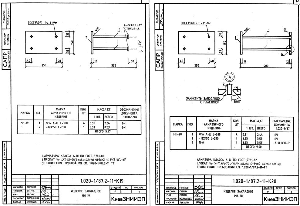
Изделие закладное МН-18; Изделие закладное МН-19 – 13 стр

989 × 681 пикс.     Открыть в новом окне  

Изделие закладное МН-21; Изделие закладное МН-22 – 14 стр

991 × 679 пикс.     Открыть в новом окне  

Изделие закладное МН-23; Изделие закладное МН- 24 – 15 стр

984 × 684 пикс.     Открыть в новом окне  

Изделие закладное МН-25; Изделие закладное МН- 26 – 16 стр

992 × 673 пикс.     Открыть в новом окне  

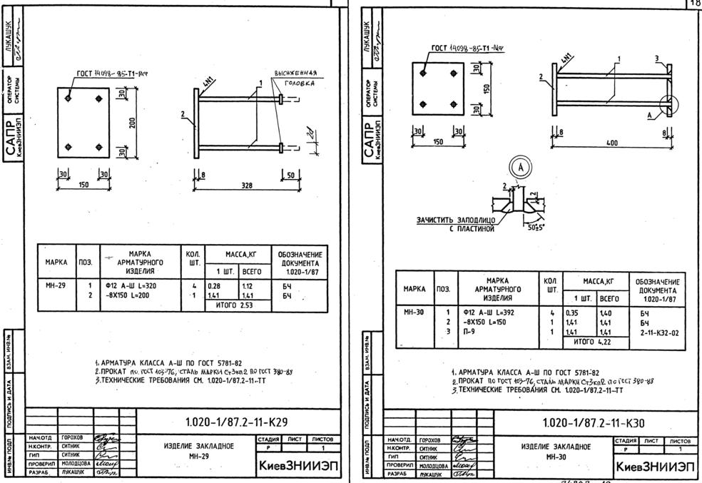
Изделие закладное МН-29; Изделие закладное МН- 30 – 17 стр

984 × 677 пикс.     Открыть в новом окне  

Изделие закладное МН-29; Изделие закладное МН- 30 – 18 стр

984 × 677 пикс.     Открыть в новом окне  

Пластины П-3, П-4,П-7, П-8; П-5, П-6,П-9 – 19 стр

987 × 680 пикс.     Открыть в новом окне  

Изделие закладное МН-43; Изделие закладное МН- 44 – 20 стр

989 × 678 пикс.     Открыть в новом окне  

Изделие закладное МН-45; Стержень гнутыйСГ-1, СГ-2 – 21 стр

973 × 677 пикс.     Открыть в новом окне  

Изделие закладное МН-46 – 22 стр

978 × 682 пикс.     Открыть в новом окне  

Изделие закладное МН-47 – 23 стр

974 × 677 пикс.     Открыть в новом окне  

Изделие закладное МН-48, МН-49, МН-50; Изделие закладное МН-51, МН-52 – 24 стр

975 × 677 пикс.     Открыть в новом окне  

Пластина П-10, П-11 – 25 стр

979 × 684 пикс.     Открыть в новом окне  

Пластина П-12, П-13 – 26 стр

952 × 672 пикс.     Открыть в новом окне  

Пластина П-14, П-15, П-16; Пластина П-17, П-18 – 27 стр

980 × 686 пикс.     Открыть в новом окне  

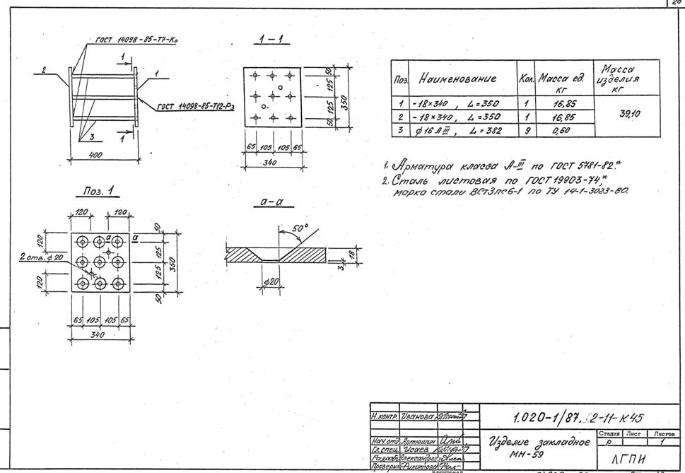
Изделие закладное МН-59 – 28 стр

969 × 669 пикс.     Открыть в новом окне  

Изделие закладное МН-60 – 29 стр

968 × 667 пикс.     Открыть в новом окне  

Изделие закладное МН-61 – 30 стр

977 × 677 пикс.     Открыть в новом окне  

Изделие закладное МН-62; Изделие закладное МН-63, Мн-64 – 31 стр

974 × 676 пикс.     Открыть в новом окне  

Изделие закладное МН-65 – 32 стр

970 × 667 пикс.     Открыть в новом окне  

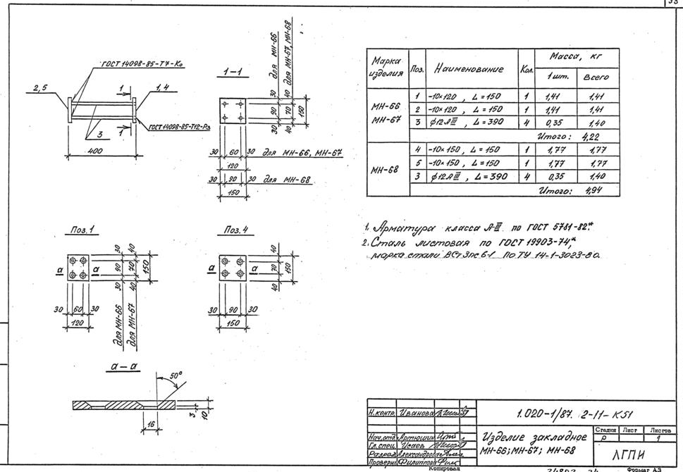
Изделие закладное МН-66, МН-67, МН-68 – 33 стр

969 × 670 пикс.     Открыть в новом окне  

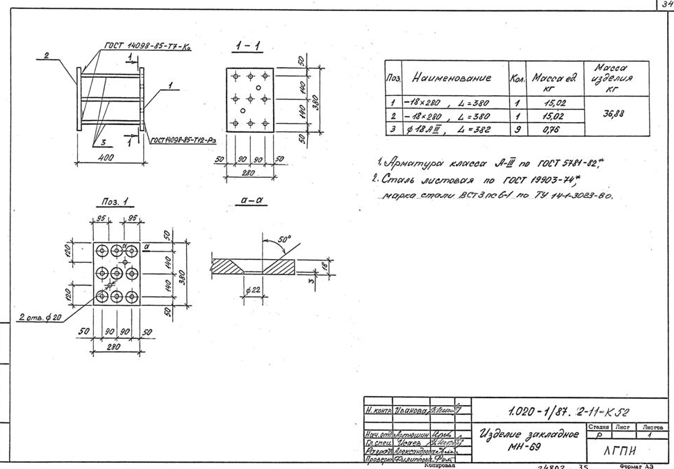
Изделие закладное МН-69 – 34 стр

970 × 675 пикс.     Открыть в новом окне  

Изделие закладное МН-70 – 35 стр

967 × 667 пикс.     Открыть в новом окне  

Изделие закладное МН-71 – 36 стр

492 × 670 пикс.     Открыть в новом окне (

Классы

Выбранные классы объекта Строительные материалы

Продукция

Подождите идет загрузка ....

Присоединяйтесь к рассылке!

Оформляя подписку, вы принимаете политику конфиденциальности ЖБИ-СНГ.ру