Выбран город Омск
Ваша корзина пуста

Серия 1.020-1/87 Конструкции каркаса межвидового применения для многоэтажных общественных зданий, производственных и вспомогательных зданий промышленных предприятий. Выпуск 2-13 Колонны из бетона класса В30 для зданий высотой этажа 3,3 м. пространственные

Описание

Рабочие чертежи

Содержание – 2 стр

936 × 641 пикс.     Открыть в новом окне  
936 × 649 пикс.     Открыть в новом окне  
931 × 648 пикс.     Открыть в новом окне  
942 × 663 пикс.     Открыть в новом окне  
940 × 655 пикс.     Открыть в новом окне  

Технические требования – 3 стр

Настоящий выпуск содержит рабочие чертежи пространственных каркасов колонн сечением 400х400 мм выпуска 2-12
Пространственные каркасы собираются из отдельных стержней замкнутых хомутов, веток косвенного армирования и закладных деталей при помощи контактной сварки.
Сварка стержней выполняется в соответствии с требованиями ГОСТ 14098-85 для соединений с нормируемой прочностью.
В зависимости от расчетных усилий предусмотрено изменение армирования пространственного каркаса по его длине обрывом продольной арматуры в вышерасположенных этажах колонны.
Диагональные связи должны привариваться к стержням продольной арматуры протяженными швами, длина швов не менее 5-ти диаметров арматурной связи.
Закладные детали МН-5…Мн-12 должны быть зафиксированы в проектном положении в форме.
Закладные детали МН-2 привариваются к продольным стержням пространственного каркаса дуговой сваркой односторонним швом.
Сборку пространственных каркасом рекомендуется проводить на автоматизированных линиях согласно указаниям выпуска 0-7 «Указания по заводской технологии изготовления изделий».
Перечень выпусков, входящих в состав сварки серии 1.020-1/87 приведен в выпуске 0-0 (дополнение 1).

Каркас пространственный КП-1, КП-2. Сборочный чертеж – 8 стр

938 × 658 пикс.     Открыть в новом окне  

Каркас пространственный КП-3, КП-4. Сборочный чертеж – 9 стр

936 × 651 пикс.     Открыть в новом окне  

Каркас пространственный КП-5, КП-6. Сборочный чертеж – 10 стр

932 × 646 пикс.     Открыть в новом окне  

Каркас пространственный КП-7, КП-8. Сборочный чертеж – 11 стр

941 × 660 пикс.     Открыть в новом окне  

Каркас пространственный КП-9. Сборочный чертеж – 12 стр

944 × 647 пикс.     Открыть в новом окне  

Каркас пространственный КП-10. Сборочный чертеж – 13 стр

932 × 649 пикс.     Открыть в новом окне  

Каркас пространственный КП-11, КП-12. Сборочный чертеж – 14 стр

922 × 645 пикс.     Открыть в новом окне  

Каркас пространственный КП-13. Сборочный чертеж – 15 стр

932 × 647 пикс.     Открыть в новом окне  

Каркас пространственный КП-15, КП-16. Сборочный чертеж – 16 стр

939 × 651 пикс.     Открыть в новом окне  

Каркас пространственный КП-16, КП-17. Сборочный чертеж – 17 стр

934 × 651 пикс.     Открыть в новом окне  

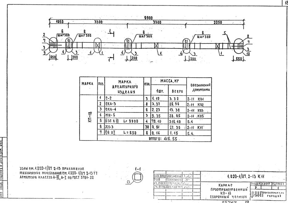
Каркас пространственный КП-18. Сборочный чертеж – 18 стр

929 × 655 пикс.     Открыть в новом окне  

Каркас пространственный КП-19, КП-20. Сборочный чертеж – 19 стр

945 × 651 пикс.     Открыть в новом окне  

Каркас пространственный КП-21. Сборочный чертеж – 20 стр

939 × 656 пикс.     Открыть в новом окне  

Каркас пространственный КП-22, КП-23. Сборочный чертеж – 21 стр

937 × 654 пикс.     Открыть в новом окне  

Каркас пространственный КП-24, КП-25. Сборочный чертеж – 22 стр

935 × 658 пикс.     Открыть в новом окне  

Каркас пространственный КП-26, КП-27. Сборочный чертеж – 23 стр

931 × 647 пикс.     Открыть в новом окне  

Каркас пространственный КП-28, КП-29, КП-30. Сборочный чертеж – 24 стр

930 × 660 пикс.     Открыть в новом окне  

Каркас пространственный КП-31, КП-32. Сборочный чертеж – 25 стр

939 × 654 пикс.     Открыть в новом окне  

Каркас пространственный КП-33, КП-34. Сборочный чертеж – 26 стр

927 × 645 пикс.     Открыть в новом окне  

Каркас пространственный КП-35, КП-36. Сборочный чертеж – 27 стр

927 × 651 пикс.     Открыть в новом окне  

Каркас пространственный КП-37, КП-38, КП-39. Сборочный чертеж – 28 стр

941 × 647 пикс.     Открыть в новом окне  

Каркас пространственный КП-40. Сборочный чертеж – 29 стр

934 × 643 пикс.     Открыть в новом окне  

Каркас пространственный КП-41. Сборочный чертеж – 30 стр

934 × 646 пикс.     Открыть в новом окне  

Каркас пространственный КП-42. Сборочный чертеж – 31 стр

923 × 650 пикс.     Открыть в новом окне  

Каркас пространственный КП-43. Сборочный чертеж – 32 стр

937 × 651 пикс.     Открыть в новом окне  

Каркас пространственный КП-44. Сборочный чертеж – 33 стр

927 × 644 пикс.     Открыть в новом окне  

Каркас пространственный КП-45, КП-46. Сборочный чертеж – 34 стр

940 × 652 пикс.     Открыть в новом окне  

Каркас пространственный КП-47, КП-48. Сборочный чертеж – 35 стр

931 × 649 пикс.     Открыть в новом окне  

Каркас пространственный КП-49. Сборочный чертеж – 36 стр

925 × 639 пикс.     Открыть в новом окне  

Каркас пространственный КП-50, КП-51. Сборочный чертеж – 37 стр

930 × 649 пикс.     Открыть в новом окне  

Каркас пространственный КП-52, КП-53. Сборочный чертеж – 38 стр

936 × 652 пикс.     Открыть в новом окне  

Каркас пространственный КП-54, КП-55. Сборочный чертеж – 39 стр

930 × 645 пикс.     Открыть в новом окне  

Каркас пространственный КП-56, КП-57. Сборочный чертеж – 40 стр

934 × 656 пикс.     Открыть в новом окне  

Каркас пространственный КП-58, КП-59. Сборочный чертеж – 41 стр

933 × 655 пикс.     Открыть в новом окне  

Каркас пространственный КП-60. Сборочный чертеж – 42 стр

924 × 649 пикс.     Открыть в новом окне  

Каркас пространственный КП-61. Сборочный чертеж – 43 стр

922 × 646 пикс.     Открыть в новом окне  

Каркас пространственный КП-62. Сборочный чертеж – 44 стр

932 × 652 пикс.     Открыть в новом окне  

Каркас пространственный КП-63. Сборочный чертеж – 45 стр

924 × 655 пикс.     Открыть в новом окне  

Каркас пространственный КП-64. Сборочный чертеж – 46 стр

938 × 657 пикс.     Открыть в новом окне  

Каркас пространственный КП-65. Сборочный чертеж – 47 стр

932 × 659 пикс.     Открыть в новом окне  

Каркас пространственный КП-66, КП-67. Сборочный чертеж – 48 стр

935 × 657 пикс.     Открыть в новом окне  

Каркас пространственный КП-68, КП-69. Сборочный чертеж – 49 стр

931 × 648 пикс.     Открыть в новом окне  

Каркас пространственный КП-70, КП-71. Сборочный чертеж – 50 стр

929 × 649 пикс.     Открыть в новом окне  

Каркас пространственный КП-72. Сборочный чертеж – 51 стр

924 × 652 пикс.     Открыть в новом окне  

Каркас пространственный КП-73, КП-74. Сборочный чертеж – 52 стр

925 × 646 пикс.     Открыть в новом окне  

Каркас пространственный КП-75, КП-76. Сборочный чертеж – 53 стр

928 × 643 пикс.     Открыть в новом окне  

Каркас пространственный КП-77. Сборочный чертеж – 54 стр

925 × 649 пикс.     Открыть в новом окне  

Каркас пространственный КП-78, КП-79. Сборочный чертеж – 55 стр

923 × 649 пикс.     Открыть в новом окне  

Каркас пространственный КП-80. Сборочный чертеж – 56 стр

927 × 647 пикс.     Открыть в новом окне  

Каркас пространственный КП-81,КП-82. Сборочный чертеж – 57 стр

921 × 646 пикс.     Открыть в новом окне  

Каркас пространственный КП-83. Сборочный чертеж – 58 стр

930 × 645 пикс.     Открыть в новом окне  

Каркас пространственный КП-84. Сборочный чертеж – 59 стр

930 × 648 пикс.     Открыть в новом окне  

Каркас пространственный КП-85, КП-86. Сборочный чертеж – 60 стр

934 × 644 пикс.     Открыть в новом окне  

Каркас пространственный КП-87. Сборочный чертеж – 61 стр

936 × 650 пикс.     Открыть в новом окне  

Каркас пространственный КП-88. Сборочный чертеж – 62 стр

932 × 650 пикс.     Открыть в новом окне  

Каркас пространственный КП-89. Сборочный чертеж – 63 стр

926 × 651 пикс.     Открыть в новом окне  

Каркас пространственный КП-90, КП-91. Сборочный чертеж – 64 стр

925 × 642 пикс.     Открыть в новом окне  

Каркас пространственный КП-92, КП-93. Сборочный чертеж – 65 стр

925 × 640 пикс.     Открыть в новом окне  

Каркас пространственный КП-94. Сборочный чертеж – 66 стр

930 × 649 пикс.     Открыть в новом окне  

Каркас пространственный КП-95. Сборочный чертеж – 67 стр

928 × 644 пикс.     Открыть в новом окне  

Каркас пространственный КП-96. Сборочный чертеж – 68 стр

930 × 642 пикс.     Открыть в новом окне  

Каркас пространственный КП-97, КП-98. Сборочный чертеж – 69 стр

930 × 639 пикс.     Открыть в новом окне  

Каркас пространственный КП-99. Сборочный чертеж – 70 стр

930 × 640 пикс.     Открыть в новом окне  

Каркас пространственный КП-100, КП-101. Сборочный чертеж – 71 стр

929 × 646 пикс.     Открыть в новом окне  

Каркас пространственный КП-102. Сборочный чертеж – 72 стр

929 × 653 пикс.     Открыть в новом окне  

Каркас пространственный КП-103. Сборочный чертеж – 73 стр

926 × 653 пикс.     Открыть в новом окне  

Каркас пространственный КП-104, КП-105. Сборочный чертеж – 74 стр

928 × 650 пикс.     Открыть в новом окне  

Каркас пространственный КП-106. Сборочный чертеж – 75 стр

924 × 646 пикс.     Открыть в новом окне  

Каркас пространственный КП-107, КП-108. Сборочный чертеж – 76 стр

935 × 652 пикс.     Открыть в новом окне  

Каркас пространственный КП-109. Сборочный чертеж – 77 стр

927 × 649 пикс.     Открыть в новом окне  

Каркас пространственный КП-110. Сборочный чертеж – 78 стр

930 × 636 пикс.     Открыть в новом окне  

Каркас пространственный КП-111, КП-112. Сборочный чертеж – 79 стр

934 × 650 пикс.     Открыть в новом окне  

Каркас пространственный КП-113. Сборочный чертеж – 80 стр

940 × 639 пикс.     Открыть в новом окне  

Каркас пространственный КП-114, КП-115. Сборочный чертеж – 81 стр

935 × 655 пикс.     Открыть в новом окне  

Каркас пространственный КП-116, КП-117. Сборочный чертеж – 82 стр

932 × 643 пикс.     Открыть в новом окне  

Каркас пространственный КП-118. Сборочный чертеж – 83 стр

929 × 645 пикс.     Открыть в новом окне  

Каркас пространственный КП-119. Сборочный чертеж – 84 стр

940 × 655 пикс.     Открыть в новом окне  

Каркас пространственный КП-120. Сборочный чертеж – 85 стр

933 × 648 пикс.     Открыть в новом окне  

Каркас пространственный КП-121, КП-122. Сборочный чертеж – 86 стр

931 × 654 пикс.     Открыть в новом окне  

Каркас пространственный КП-123. Сборочный чертеж – 87 стр

932 × 650 пикс.     Открыть в новом окне  

Каркас пространственный КП-124, КП-125. Сборочный чертеж – 88 стр

935 × 656 пикс.     Открыть в новом окне  

Каркас пространственный КП-126, КП-127. Сборочный чертеж – 89 стр

933 × 647 пикс.     Открыть в новом окне  

Каркас пространственный КП-128. Сборочный чертеж – 90 стр

939 × 643 пикс.     Открыть в новом окне  

Каркас пространственный КП-129. Сборочный чертеж – 91 стр

932 × 642 пикс.     Открыть в новом окне  

Каркас пространственный КП-130. Сборочный чертеж – 92 стр

934 × 651 пикс.     Открыть в новом окне  

Каркас пространственный КП-131, КП-132. Сборочный чертеж – 93 стр

930 × 645 пикс.     Открыть в новом окне  

Каркас пространственный КП-133, КП-134. Сборочный чертеж – 94 стр

928 × 644 пикс.     Открыть в новом окне  

Каркас пространственный КП-135. Сборочный чертеж – 95 стр

936 × 646 пикс.     Открыть в новом окне  

Каркас пространственный КП-136. Сборочный чертеж – 96 стр

931 × 654 пикс.     Открыть в новом окне  

Каркас пространственный КП-137. Сборочный чертеж – 97 стр

936 × 646 пикс.     Открыть в новом окне  

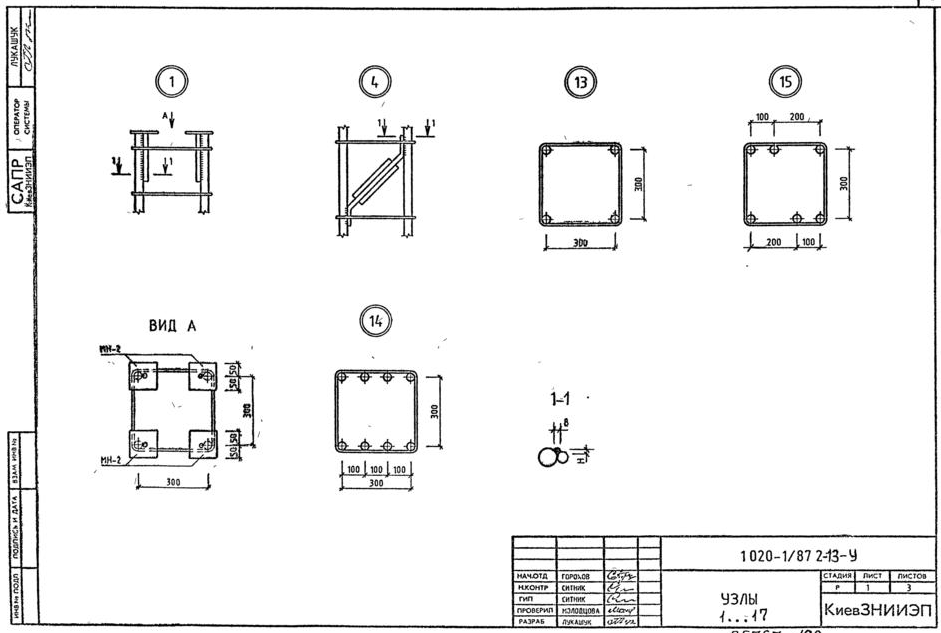
Приложение. Узлы 1…17 – 98 стр

941 × 633 пикс.     Открыть в новом окне  
951 × 650 пикс.     Открыть в новом окне  
958 × 647 пикс.     Открыть в новом окне 

Классы

Выбранные классы объекта Строительные материалы

Продукция

Подождите идет загрузка ....

Присоединяйтесь к рассылке!

Оформляя подписку, вы принимаете политику конфиденциальности ЖБИ-СНГ.ру