Выбран город Омск
Ваша корзина пуста

Серия 1.020-1/87 Конструкции каркаса межвидового применения для многоэтажных общественных зданий, производственных и вспомогательных зданий промышленных предприятий. Выпуск 2-17 Колонны из бетона класса В30 для зданий с высотой этажа 4,2 м. Пространственн

Описание

Рабочие чертежи

Содержание – 2 стр

936 × 566 пикс.     Открыть в новом окне  
937 × 571 пикс.     Открыть в новом окне  
930 × 574 пикс.     Открыть в новом окне  

Технические требования – 5 стр

Настоящий выпуск содержит рабочие чертежи пространственных каркасов колонн сечением 400х400 мм выпуска 2-16
Пространственные каркасы собираются из отдельных стержней замкнутых хомутов, веток косвенного армирования и закладных деталей при помощи контактной сварки.
Сварка стержней выполняется в соответствии с требованиями ГОСТ 14098-85 для соединений с нормируемой прочностью.
В зависимости от расчетных усилий предусмотрено изменение армирования пространственного каркаса по его длине обрывом продольной арматуры в вышерасположенных этажах колонны.
Диагональные связи должны привариваться к стержням продольной арматуры протяженными швами, длина швов не менее 5-ти диаметров арматурной связи.
Закладные детали МН-5…Мн-12 должны быть зафиксированы в проектном положении в форме.
Закладные детали МН-2 привариваются к продольным стержням пространственного каркаса дуговой сваркой односторонним швом.
Сборку пространственных каркасом рекомендуется проводить на автоматизированных линиях согласно указаниям выпуска 0-7 «Указания по заводской технологии изготовления изделий».
Перечень выпусков, входящих в состав сварки серии 1.020-1/87 приведен в выпуске 0-0 (дополнение 1).

Каркас пространственный КП-1, КП-2. Сборочный чертеж – 6 стр

933 × 574 пикс.     Открыть в новом окне  

Каркас пространственный КП-3, КП-4. Сборочный чертеж – 7 стр

930 × 568 пикс.     Открыть в новом окне  

Каркас пространственный КП-5. Сборочный чертеж – 8 стр

929 × 567 пикс.     Открыть в новом окне  

Каркас пространственный КП-6. Сборочный чертеж – 9 стр

937 × 580 пикс.     Открыть в новом окне  

Каркас пространственный КП-7, КП-8. Сборочный чертеж – 10 стр

928 × 588 пикс.     Открыть в новом окне  

Каркас пространственный КП-9, КП-10. Сборочный чертеж – 11 стр

925 × 572 пикс.     Открыть в новом окне  

Каркас пространственный КП-11. Сборочный чертеж – 12 стр

926 × 572 пикс.     Открыть в новом окне  

Каркас пространственный КП-12. Сборочный чертеж – 13 стр

929 × 576 пикс.     Открыть в новом окне  

Каркас пространственный КП-13. Сборочный чертеж – 14 стр

930 × 580 пикс.     Открыть в новом окне  

Каркас пространственный КП-14. Сборочный чертеж – 15 стр

930 × 569 пикс.     Открыть в новом окне  

Каркас пространственный КП-15, КП-16. Сборочный чертеж – 16 стр

926 × 577 пикс.     Открыть в новом окне  

Каркас пространственный КП-17, КП-18. Сборочный чертеж – 17 стр

930 × 565 пикс.     Открыть в новом окне  

Каркас пространственный КП-19. Сборочный чертеж – 18 стр

942 × 575 пикс.     Открыть в новом окне  

Каркас пространственный КП-20. Сборочный чертеж – 19 стр

937 × 572 пикс.     Открыть в новом окне  

Каркас пространственный КП-21. Сборочный чертеж – 20 стр

936 × 568 пикс.     Открыть в новом окне  

Каркас пространственный КП-22, КП-23. Сборочный чертеж – 21 стр

927 × 576 пикс.     Открыть в новом окне  

Каркас пространственный КП-24. Сборочный чертеж – 22 стр

938 × 581 пикс.     Открыть в новом окне  

Каркас пространственный КП-25. Сборочный чертеж – 23 стр

935 × 574 пикс.     Открыть в новом окне  

Каркас пространственный КП-26, КП-27. Сборочный чертеж – 24 стр

926 × 575 пикс.     Открыть в новом окне  

Каркас пространственный КП-28, КП-29. Сборочный чертеж – 25 стр

924 × 575 пикс.     Открыть в новом окне  

Каркас пространственный КП-30, КП-31. Сборочный чертеж – 26 стр

937 × 565 пикс.     Открыть в новом окне  

Каркас пространственный КП-32, КП-33. Сборочный чертеж – 27 стр

929 × 581 пикс.     Открыть в новом окне  

Каркас пространственный КП-34 Сборочный чертеж – 28 стр

932 × 570 пикс.     Открыть в новом окне  

Каркас пространственный КП-34 Сборочный чертеж – 28 стр

932 × 570 пикс.     Открыть в новом окне  

Каркас пространственный КП-35 Сборочный чертеж – 29 стр

932 × 568 пикс.     Открыть в новом окне  

Каркас пространственный КП-36 Сборочный чертеж – 30 стр

928 × 569 пикс.     Открыть в новом окне  

Каркас пространственный КП-37, КП-38 Сборочный чертеж – 31 стр

929 × 566 пикс.     Открыть в новом окне  

Каркас пространственный КП-39, КП-40 Сборочный чертеж – 32 стр

931 × 564 пикс.     Открыть в новом окне  

Каркас пространственный КП-41, КП-42 Сборочный чертеж – 33 стр

936 × 575 пикс.     Открыть в новом окне  

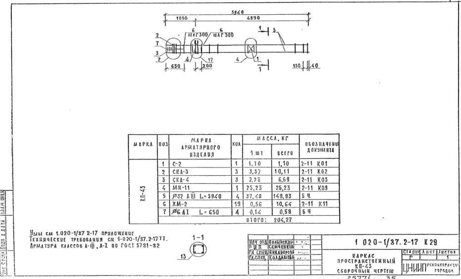
Каркас пространственный КП-43 Сборочный чертеж – 34 стр

931 × 565 пикс.     Открыть в новом окне  

Каркас пространственный КП-44 Сборочный чертеж – 35 стр

920 × 573 пикс.     Открыть в новом окне  

Каркас пространственный КП-45 Сборочный чертеж – 36 стр

932 × 562 пикс.     Открыть в новом окне  

Каркас пространственный КП-46 Сборочный чертеж – 37 стр

930 × 567 пикс.     Открыть в новом окне  

Каркас пространственный КП-47 Сборочный чертеж – 38 стр

930 × 571 пикс.     Открыть в новом окне  

Каркас пространственный КП-48 Сборочный чертеж – 39 стр

925 × 573 пикс.     Открыть в новом окне  

Каркас пространственный КП-49, КП-50 Сборочный чертеж – 40 стр

931 × 569 пикс.     Открыть в новом окне  

Каркас пространственный КП-51, КП-52 Сборочный чертеж – 41 стр

935 × 574 пикс.     Открыть в новом окне  

Каркас пространственный КП-53 Сборочный чертеж – 42 стр

932 × 573 пикс.     Открыть в новом окне  

Каркас пространственный КП-54, КП-55 Сборочный чертеж – 43 стр

936 × 569 пикс.     Открыть в новом окне  

Каркас пространственный КП-56 Сборочный чертеж – 44 стр

943 × 568 пикс.     Открыть в новом окне  

Каркас пространственный КП-57 Сборочный чертеж – 45 стр

926 × 573 пикс.     Открыть в новом окне  

Каркас пространственный КП-58 Сборочный чертеж – 46 стр

941 × 579 пикс.     Открыть в новом окне  

Каркас пространственный КП-59, КП-60 Сборочный чертеж – 47 стр

926 × 568 пикс.     Открыть в новом окне  

Каркас пространственный КП-61, КП-62 Сборочный чертеж – 48 стр

937 × 569 пикс.     Открыть в новом окне  

Каркас пространственный КП-63 Сборочный чертеж – 49 стр

932 × 571 пикс.     Открыть в новом окне  

Каркас пространственный КП-64 Сборочный чертеж – 50 стр

935 × 573 пикс.     Открыть в новом окне  

Каркас пространственный КП-65 Сборочный чертеж – 51 стр

933 × 570 пикс.     Открыть в новом окне  

Каркас пространственный КП-66 Сборочный чертеж – 52 стр

936 × 578 пикс.     Открыть в новом окне  

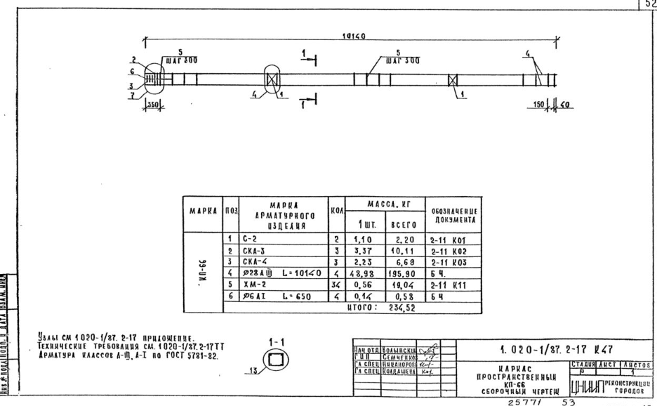
Каркас пространственный КП-67 Сборочный чертеж – 53 стр

934 × 571 пикс.     Открыть в новом окне  

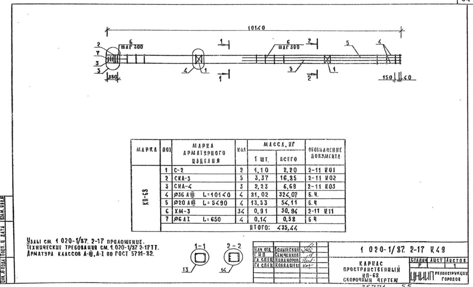
Каркас пространственный КП-68 Сборочный чертеж – 54 стр

939 × 570 пикс.     Открыть в новом окне  

Каркас пространственный КП-69 Сборочный чертеж – 55 стр

936 × 566 пикс.     Открыть в новом окне  

Каркас пространственный КП-70 Сборочный чертеж – 56 стр

928 × 567 пикс.     Открыть в новом окне  

Каркас пространственный КП-71 Сборочный чертеж – 57 стр

918 × 565 пикс.     Открыть в новом окне  

Каркас пространственный КП-72 Сборочный чертеж – 58 стр

937 × 572 пикс.     Открыть в новом окне  

Каркас пространственный КП-73 Сборочный чертеж – 59 стр

929 × 573 пикс.     Открыть в новом окне  

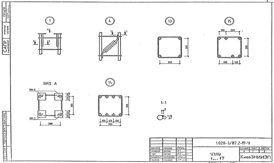
Приложение. Узлы 1…17 – 60 стр

953 × 568 пикс.     Открыть в новом окне  
952 × 574 пикс.     Открыть в новом окне  
945 × 568 пикс.     Открыть в новом окне (

Классы

Выбранные классы объекта Строительные материалы

Продукция

Подождите идет загрузка ....

Присоединяйтесь к рассылке!

Оформляя подписку, вы принимаете политику конфиденциальности ЖБИ-СНГ.ру