Выбран город Омск
Ваша корзина пуста

Серия 1.020-1/87 Конструкции каркаса межвидового применения для многоэтажных общественных зданий, производственных и вспомогательных зданий промышленных предприятий. Выпуск 2-4 Колонны для зданий с высотой этажа 3,6 м. Пространственные каркасы.

Описание

Рабочие чертежи

Содержание – 2 стр

986 × 679 пикс.     Открыть в новом окне  
1004 × 690 пикс.     Открыть в новом окне  
997 × 679 пикс.     Открыть в новом окне  
994 × 674 пикс.     Открыть в новом окне  
495 × 678 пикс.     Открыть в новом окне  

Технические требования – 6 стр

Настоящий выпуск содержит рабочие чертежи пространственных каркасов колонн сечением 400х400 мм выпуска 2-3.
Пространственные каркасы собираются из отдельных стержней, замкнутых хомутов, сеток косвенного армирования и закладных изделий при помощи контактной сварки.
Сварка стержней выполняется в соответствии с требованиями ГОСТ 14098-85 для соединений с нормируемой прочностью.
В зависимости от расчетных усилий предусмотрено изменение армирования пространственного каркаса по его длине обрывом продольной арматуры в вышерасположенных этажах колонны.
Диагональные связи должны привариваться к стержням продольной арматуры протяженными швами, длина швов не менее 5-ти диаметров арматуры связи.
Закладные изделия МН-5…МН-12 должны быть зафиксированы в проектном положении в форме
Закладные изделия МН-2 привариваются к продольным стержням пространственного каркаса дуговой сваркой односторонним швом.
Сборку пространственных каркасов рекомендуется производить на автоматизированных линиях согласно указаниям выпуска 0-7 «Указания по заводской технологии изготовления изделий».
Перечень выпусков, входящих в серию 1.020-1/87 приведен в выпуске 0-0.

Каркас пространственный КП-1, КП-2 – 7 стр

983 × 663 пикс.     Открыть в новом окне  

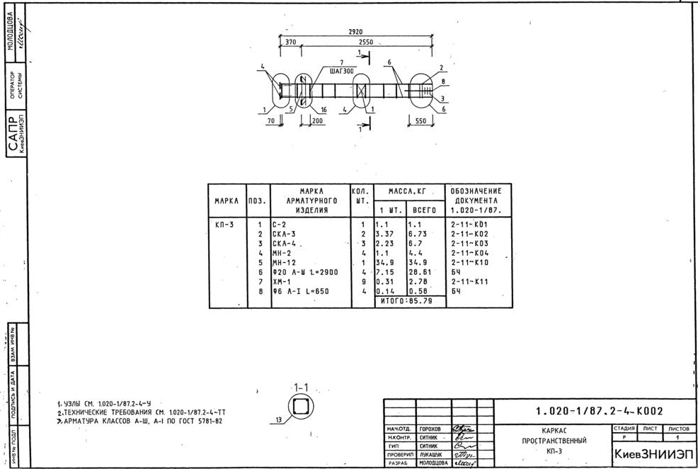
Каркас пространственный КП-3 – 8 стр

986 × 662 пикс.     Открыть в новом окне  

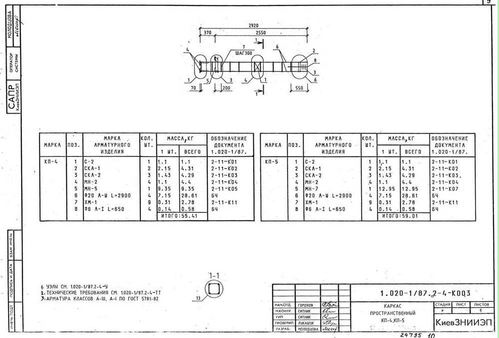
Каркас пространственный КП-4, КП-5 – 9 стр

999 × 678 пикс.     Открыть в новом окне  

Каркас пространственный КП-6 – 10 стр

992 × 662 пикс.     Открыть в новом окне  

Каркас пространственный КП-7, КП-8 – 11 стр

987 × 669 пикс.     Открыть в новом окне  

Каркас пространственный КП-9, КП-10 – 12 стр

983 × 661 пикс.     Открыть в новом окне  

Каркас пространственный КП-11 – 13 стр

982 × 665 пикс.     Открыть в новом окне  

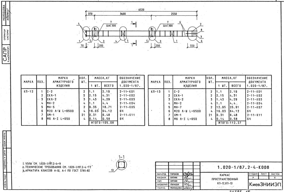
Каркас пространственный КП-12, КП-13 – 14 стр

981 × 664 пикс.     Открыть в новом окне  

Каркас пространственный КП-14 – 15 стр

997 × 673 пикс.     Открыть в новом окне  

Каркас пространственный КП-15, КП-16 – 16 стр

991 × 672 пикс.     Открыть в новом окне  

Каркас пространственный КП-15, КП-16 – 17 стр

986 × 666 пикс.     Открыть в новом окне  

Каркас пространственный КП-19, КП-20 – 18 стр

995 × 667 пикс.     Открыть в новом окне  

Каркас пространственный КП-21, КП-22 – 19 стр

980 × 666 пикс.     Открыть в новом окне  

Каркас пространственный КП-23 - КП-26 – 20 стр

988 × 667 пикс.     Открыть в новом окне  

Каркас пространственный КП-27, КП-28 – 21 стр

993 × 670 пикс.     Открыть в новом окне  

Каркас пространственный КП-29, КП-30 – 22 стр

988 × 675 пикс.     Открыть в новом окне  

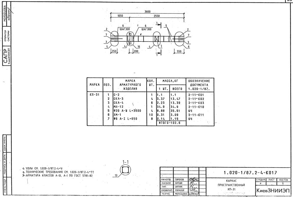
Каркас пространственный КП-31– 23 стр

991 × 668 пикс.     Открыть в новом окне  

Каркас пространственный КП-32 – 24 стр

994 × 680 пикс.     Открыть в новом окне  

Каркас пространственный КП-33 – 25 стр

998 × 680 пикс.     Открыть в новом окне  

Каркас пространственный КП-34 – КП-37 – 26 стр

989 × 675 пикс.     Открыть в новом окне  

Каркас пространственный КП-38, КП-39 – 27 стр

990 × 669 пикс.     Открыть в новом окне  

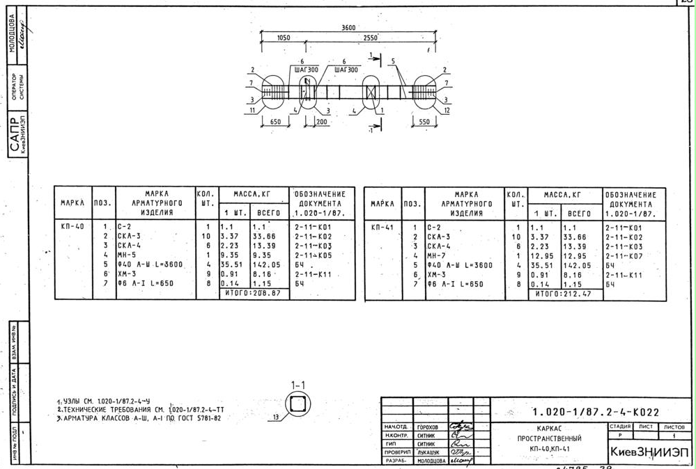
Каркас пространственный КП-40, КП-41 – 28 стр

999 × 674 пикс.     Открыть в новом окне  

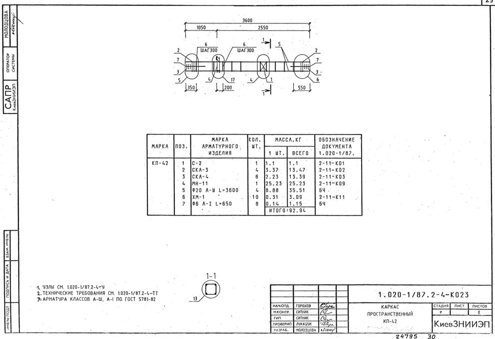
Каркас пространственный КП-42 – 29 стр

991 × 678 пикс.     Открыть в новом окне  

Каркас пространственный КП-43 – 30 стр

998 × 678 пикс.     Открыть в новом окне  

Каркас пространственный КП-44 – 31 стр

992 × 665 пикс.     Открыть в новом окне  

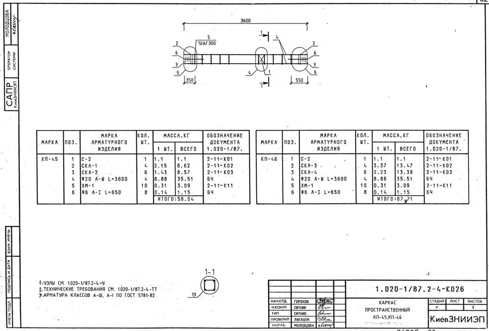
Каркас пространственный КП-45, КП-46 – 32 стр

983 × 665 пикс.     Открыть в новом окне  

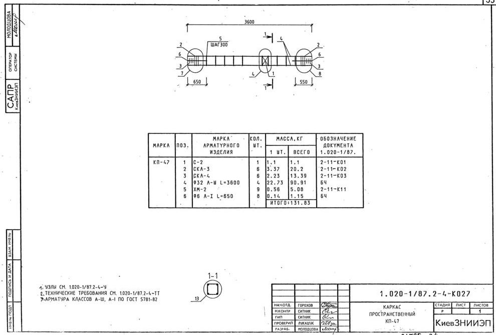
Каркас пространственный КП-47 – 33 стр

990 × 668 пикс.     Открыть в новом окне  

Каркас пространственный КП-48 – 34 стр

989 × 665 пикс.     Открыть в новом окне  

Каркас пространственный КП-49 - КП-53 – 35 стр

993 × 670 пикс.     Открыть в новом окне  

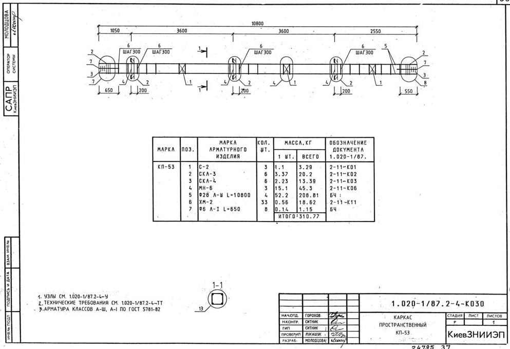
Каркас пространственный КП-53 – 36 стр

993 × 679 пикс.     Открыть в новом окне  

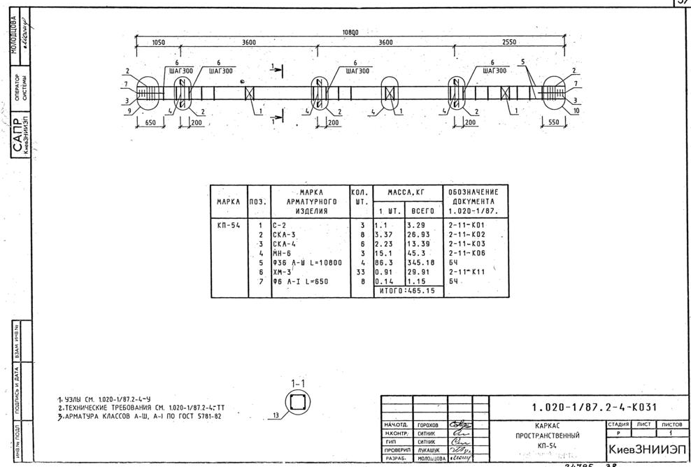
Каркас пространственный КП-54 – 37 стр

988 × 668 пикс.     Открыть в новом окне  

Каркас пространственный КП-55, КП-56 – 38 стр

991 × 665 пикс.     Открыть в новом окне  

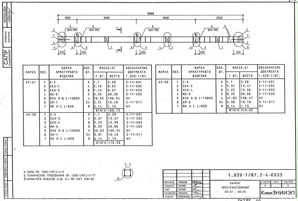
Каркас пространственный КП-57 - КП-59 – 39 стр

996 × 672 пикс.     Открыть в новом окне  

Каркас пространственный КП-60, КП-61 – 40 стр

983 × 670 пикс.     Открыть в новом окне  

Каркас пространственный КП-62 - КП-65 – 41 стр

986 × 667 пикс.     Открыть в новом окне  

Каркас пространственный КП-66, КП-67 – 42 стр

990 × 667 пикс.     Открыть в новом окне  

Каркас пространственный КП-68, КП-69 – 43 стр

996 × 667 пикс.     Открыть в новом окне  

Каркас пространственный КП-70, КП-71 – 44 стр

996 × 667 пикс.     Открыть в новом окне  

Каркас пространственный КП-72, КП-73 – 44 стр

993 × 669 пикс.     Открыть в новом окне  
Каркас пространственный КП-74 - КП-76 – 46 стр
979 × 671 пикс.     Открыть в новом окне  

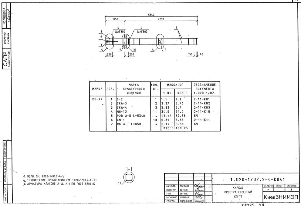
Каркас пространственный КП-77 – 47 стр

992 × 677 пикс.     Открыть в новом окне  

Каркас пространственный КП-78 – 48 стр

998 × 671 пикс.     Открыть в новом окне  

Каркас пространственный КП-79 – 49 стр

987 × 667 пикс.     Открыть в новом окне  

Каркас пространственный КП-80, КП-81 – 50 стр

999 × 677 пикс.     Открыть в новом окне  

Каркас пространственный КП-82 - КП-84 – 51 стр

988 × 664 пикс.     Открыть в новом окне  

Каркас пространственный КП-85, КП-86 – 52 стр

999 × 684 пикс.     Открыть в новом окне  

Каркас пространственный КП-87, КП-88 – 53 стр

991 × 672 пикс.     Открыть в новом окне  

Каркас пространственный КП-89, КП-90 – 54 стр

989 × 664 пикс.     Открыть в новом окне  

Каркас пространственный КП-91 - КП-93 – 55 стр

995 × 669 пикс.     Открыть в новом окне  

Каркас пространственный КП-94 – 56 стр

1001 × 684 пикс.     Открыть в новом окне  

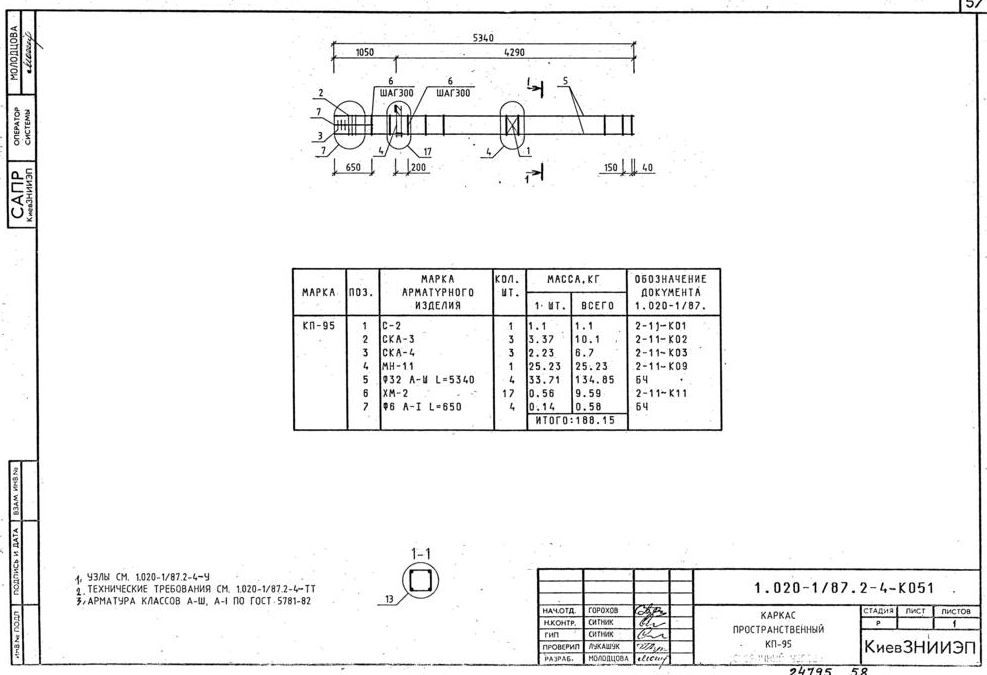
Каркас пространственный КП-95 – 57 стр

987 × 675 пикс.     Открыть в новом окне  

Каркас пространственный КП-96 – 58 стр

996 × 675 пикс.     Открыть в новом окне  

Каркас пространственный КП-97, КП-98 – 59 стр

995 × 675 пикс.     Открыть в новом окне  

Каркас пространственный КП-99, КП-100 – 60 стр

990 × 672 пикс.     Открыть в новом окне  

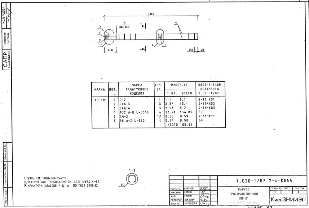
Каркас пространственный КП-101 – 61 стр

997 × 672 пикс.     Открыть в новом окне  

Каркас пространственный КП-102 – 62 стр

987 × 667 пикс.     Открыть в новом окне  

Каркас пространственный КП-102 – 62 стр

987 × 667 пикс.     Открыть в новом окне  

Каркас пространственный КП-103 – 63 стр

993 × 670 пикс.     Открыть в новом окне  

Каркас пространственный КП-104 – КП-106 – 64 стр

999 × 677 пикс.     Открыть в новом окне  

Каркас пространственный КП-107 – 65 стр

996 × 667 пикс.     Открыть в новом окне  

Каркас пространственный КП-108, КП-109 – 66 стр

999 × 680 пикс.     Открыть в новом окне  

Каркас пространственный КП-110 – 67 стр

994 × 674 пикс.     Открыть в новом окне  

Каркас пространственный КП-111 – 68 стр

988 × 668 пикс.     Открыть в новом окне  

Каркас пространственный КП-112 – 69 стр

989 × 668 пикс.     Открыть в новом окне  

Каркас пространственный КП-113, КП-114 – 70 стр

995 × 673 пикс.     Открыть в новом окне  

Каркас пространственный КП-115 – 71 стр

998 × 666 пикс.     Открыть в новом окне  

Каркас пространственный КП-116 – 72 стр

996 × 672 пикс.     Открыть в новом окне  

Каркас пространственный КП-117 – 73 стр

998 × 682 пикс.     Открыть в новом окне  

Каркас пространственный КП-118 – 74 стр

996 × 672 пикс.     Открыть в новом окне  

Каркас пространственный КП-119 – КП-121 – 75 стр

993 × 674 пикс.     Открыть в новом окне  

Каркас пространственный КП-122 – КП-124 – 76 стр

991 × 678 пикс.     Открыть в новом окне  

Каркас пространственный КП-125 – 77 стр

994 × 674 пикс.     Открыть в новом окне  

Каркас пространственный КП-126 – 78 стр

997 × 669 пикс.     Открыть в новом окне  

Каркас пространственный КП-127 – 79 стр

998 × 665 пикс.     Открыть в новом окне  

Каркас пространственный КП-128 – 80 стр

992 × 672 пикс.     Открыть в новом окне  

Каркас пространственный КП-129 – 81 стр

1007 × 674 пикс.     Открыть в новом окне  

Каркас пространственный КП-130 – 82 стр

1000 × 678 пикс.     Открыть в новом окне  

Каркас пространственный КП-131 – 83 стр

990 × 666 пикс.     Открыть в новом окне  

Каркас пространственный КП-132, КП-133 – 84 стр

1001 × 673 пикс.     Открыть в новом окне  

Каркас пространственный КП-134 - КП-136 – 85 стр

1004 × 670 пикс.     Открыть в новом окне  

Каркас пространственный КП-137, КП-138 – 86 стр

1001 × 677 пикс.     Открыть в новом окне  

Каркас пространственный КП-139 – 87 стр

990 × 667 пикс.     Открыть в новом окне  

Каркас пространственный КП-140 – 88 стр

996 × 669 пикс.     Открыть в новом окне  

Каркас пространственный КП-141 – 89 стр

985 × 675 пикс.     Открыть в новом окне  

Каркас пространственный КП-142 – 90 стр

1001 × 675 пикс.     Открыть в новом окне  

Каркас пространственный КП-143, КП-144 – 91 стр

998 × 669 пикс.     Открыть в новом окне  

Каркас пространственный КП-145 – 92 стр

996 × 675 пикс.     Открыть в новом окне  

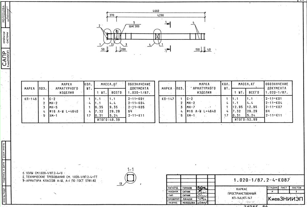
Каркас пространственный КП-146, КП-147 – 93 стр

1001 × 676 пикс.     Открыть в новом окне  

Каркас пространственный КП-148 – 94 стр

1002 × 671 пикс.     Открыть в новом окне  

Каркас пространственный КП-149 – 95 стр

1005 × 679 пикс.     Открыть в новом окне  

Каркас пространственный КП-150, КП-151 – 96 стр

1001 × 677 пикс.     Открыть в новом окне  

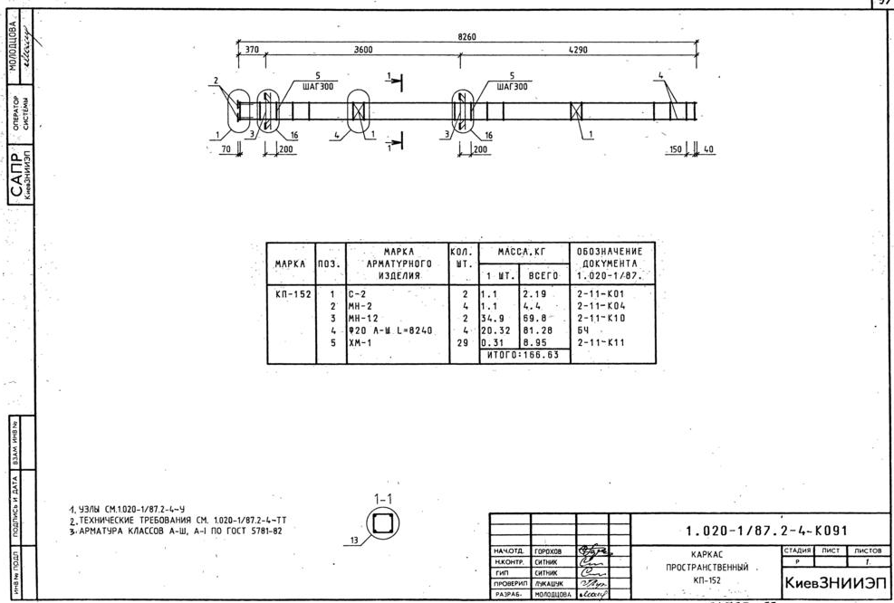
Каркас пространственный КП-152 – 97 стр

987 × 666 пикс.     Открыть в новом окне  

Каркас пространственный КП-153, КП-154 – 98 стр

996 × 674 пикс.     Открыть в новом окне  

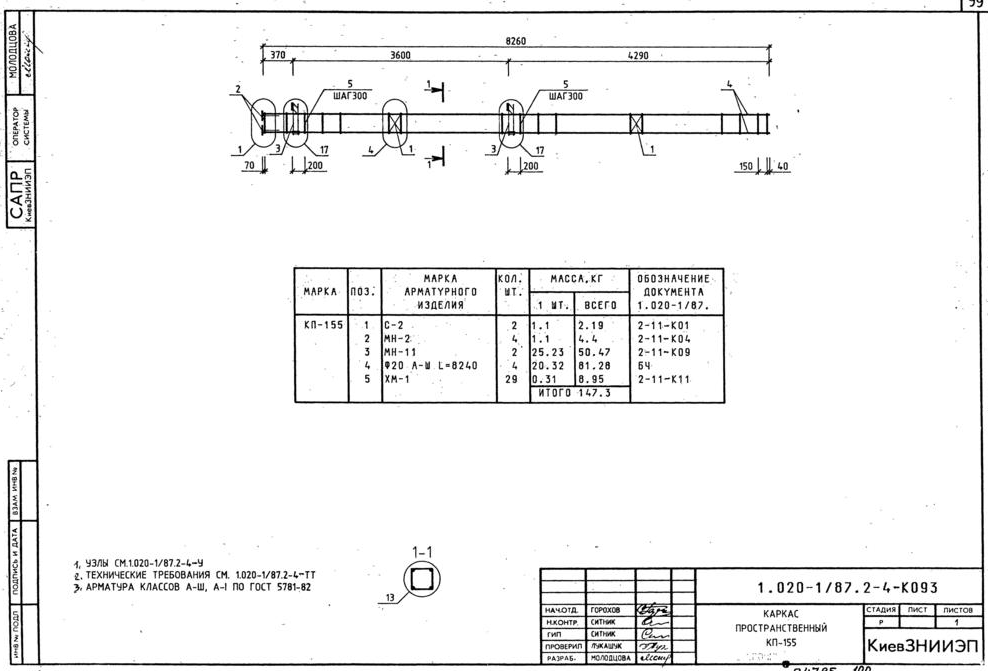
Каркас пространственный КП-155 – 99 стр

988 × 671 пикс.     Открыть в новом окне  

Каркас пространственный КП-156, КП-157 – 100 стр

998 × 673 пикс.     Открыть в новом окне  

Каркас пространственный КП-158, КП-159 – 101 стр

997 × 674 пикс.     Открыть в новом окне  

Каркас пространственный КП-160 – 102 стр

1001 × 675 пикс.     Открыть в новом окне  

Каркас пространственный КП-161, КП-162 – 103 стр

984 × 660 пикс.     Открыть в новом окне  

Каркас пространственный КП-163 – 104 стр

990 × 668 пикс.     Открыть в новом окне  

Каркас пространственный КП-164, КП-165 – 105 стр

998 × 673 пикс.     Открыть в новом окне  

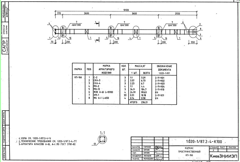
Каркас пространственный КП-166 – 106 стр

1005 × 677 пикс.     Открыть в новом окне  

Каркас пространственный КП-167 – 107 стр

994 × 669 пикс.     Открыть в новом окне  

Каркас пространственный КП-168 – 108 стр

1000 × 673 пикс.     Открыть в новом окне  

Каркас пространственный КП-169 – 109 стр

996 × 667 пикс.     Открыть в новом окне  

Каркас пространственный КП-170, КП-171 – 110 стр

988 × 666 пикс.     Открыть в новом окне  

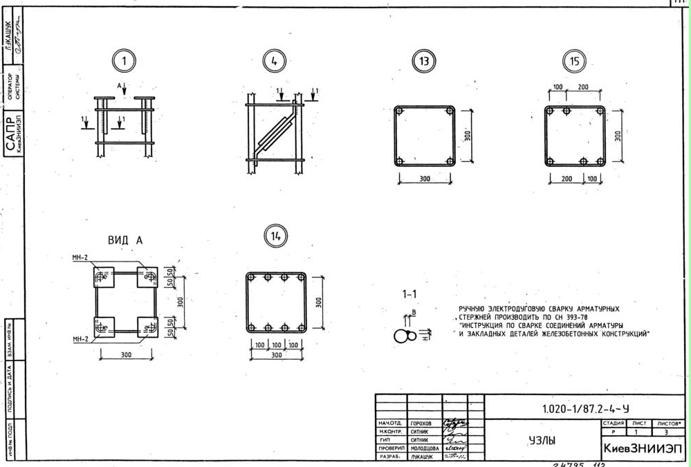
Узлы – 111 стр

999 × 675 пикс.     Открыть в новом окне  
994 × 674 пикс.     Открыть в новом окне  
993 × 676 пикс.     Открыть в новом окне (

Классы

Выбранные классы объекта Строительные материалы

Продукция

Подождите идет загрузка ....

Присоединяйтесь к рассылке!

Оформляя подписку, вы принимаете политику конфиденциальности ЖБИ-СНГ.ру