Выбран город Омск
Ваша корзина пуста

Серия 1.020-1/87 Конструкции каркаса межвидового применения для многоэтажных общественных зданий, производственных и вспомогательных зданий промышленных предприятий. Выпуск 3-11 Ригели высотой 450 мм с ненапрягаемой арматурой класса А-IIIв и Aт-IVC для оп

Описание

Рабочие чертежи

Содержание – 2 стр

927 × 681 пикс.     Открыть в новом окне  

Технические требования – 3 стр

Общие данные
Настоящий выпуск содержит рабочие чертежи ригелей пролетом 3,0 и 6,0 с высотой сечения 450 мм с ненапрягамой арматурой класса А-IIIа и Ат-IVС, предназначенных для опирания на них многопустотных перекрытий.
Ригели предназначены для применения в зданиях с неагрессивной средой. Ригели запроектированы как конструкции 3-ей категории и рассчитаны в соответствии с требованиями:
- рекомендаций ЦНИИЭП ТБЗ и ТК и НИИЖБ Госстроя СССР «Рекомендации по расчету ригелей связевого каркаса с учетом совместной работы со сборным настилом» (м., 1989 г.);
- рекомендаций ЦИИЭП ТБЗ и ТК и НИИЖБ Госстроя СССР «Рекомендации по расчету ригелей связевого каркаса с учетом совместной работы со сборным настилом» (М., 1989 г.);
- рекомендации ЦНИИЭП ТБЗ и ТК и НИИЖБ СССР «Рекомендации по расчету и конструированию опорных зон ригелей с подрезками серии I.020-I/83 (М., 1988 г.);
- рекомендаций ЦНИИЭП ТБЗ и ТК и НИИЖБ Госстроя СССР «Медика расчета ригелей торцевых поперечных многоэтажных зданий на кручение с изгибом» (М., 1964 г.)
Расчет ригелей по 2-ой группе предельных состояний выполнялся с учетом совместной работы ригелей и плит перекрытий.
Ригели по данному выпуску являются технологическим вариантом и могут изготавливаться в оснастке для ригелей по серии 1.020-I/87 вып. 3-7 или в оснастке для ригелей по остальным выпускам с соответствующими изменениями конструкции по серии 1.020-I\87 вып. 3-7 или в оснастке по остальным выпускам с соответствующими изменениями конструкции бортов гребня ригеля для образования шпонок, обеспечивающих совместную работу ригелей с плитами перекрытий.
Ригели допускаются применять в условиях воздействия температуры до +50 МЉС и нормального влажностного режима.
Требования к изготовлению, хранению и транспортированию ригелей приведены в ГОСТ 18980-90 «Ригели железобетонные для многоэтажных зданий. Технические условия»
Предел огнестойкости ригелей составляет 2 часа
Маркировка ригелей
Маркировка ригелей принята по ГОСТ 29009-78
Марка ригелей состоит из двух буквенно-цифровых групп.
Первая группа содержит буквенные и цифровые обозначения. Буквенные обозначения характеризует поперечное сечение ригеля:
РДП – ригель с двумя симметричными полками для опирания плит с двух сторон (двухполочный);
РОП – ригель с двумя несимметричными полками для опирания плит с одной стороны (одноплочный);
РЛП – ригель с одной полкой, устанавливаемый в лестничных клетках для опирания плит и лестничных маршей (лестничный)
Цифровые обозначения характеризуют габаритные параметры ригелей: первое число обозначает округленный размер высоты сечения в дм; второе число обозначает округленную длину ригеля в дм.
Вторая часть марки характеризует несущую способность ригеля (расчетную нагрузку в сотнях килограммов на погонный метр без учета собственного веса ригеля) и арматуры.
В связи с тем, что все ригели изготавливаются из тяжелого бетона, обозначения вида бетона в марке отсутствуют.
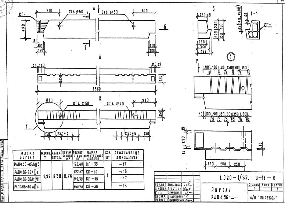
Пример: РДП4.56-70АТУС – ригель с двумя симметричными полками для опирания многопустотных плит, высотой 450 мм, длиной 5560 мм, м нагрузкой 7,0 тс\м, с арматурой класса Ат-IУС.
Конструктивные данные
Ригели изготавливаются из тяжелого бетона классов В20, В30, В35
Значения нормируемой отпускной прочности назначаются проектной организацией, осуществляющей разработку (привязку) проекта конкретного здания с учетом технологии изготовления конструкций, их транспортировки и монтажа. При этом минимальное значение нормируемой отпускной прочности бетона на сжатие следует принимать, в соответствии с ГОСИ 13015.0-83
Ригели запроектированы без предварительного напряжения. Нижняя рабочая арматура принята в двух вариантах – из стали класса Ат-IУС по ГОСТ 10884-81 и АIII по ГОСТ 5781-82.
Продольная и поперечная арматура принята из стали класса АIII по ГОСТ5781-82. Арматура сеток принята из стали класса Вр-I по ГОСТ 6727-80.
При армировании опорных зон использовались наклонные и горизонтальные пластины:
- в двухполочных ригелях – по авторскому свидетельству в„– 2330627;
- в однополочных и лестничных ригелях – по авторскому свидетельству в„– 1654492.
Ригели армируются одним пространственным каркасом, в состав которого входят все арматурные изделия ригеля.
При сборке пространственных каркасов крепление отдельных прямых и гнутых стержней, объединяющих плоские каркасы в пространственный каркас, следует производить сваркой с гарантированной прочностью в соответствии с ГОСТ 10922-90. Особое внимание необходимо обратить на качество приварки наклонных пластин к горизонтальным стержням каркасов и к верхней пластине.
Крепление гнутых стержней производить электродуговой сваркой протяженными швами соответственно указаниям на чертежах.
Крепление стоек полок к каркасу производить с помощью вязальной проволоки или контактно-точечной сварки.
Для выемки ригеля из опалубки и монтажа предусмотрены отверстия  В качестве технологического варианта можно применять монтажные петли по серии 1.400-9 «Унифицированные строповочные петли для подъема сборных железобетонных конструкций зданий и сооружений промышленных предприятий»
Петли устанавливаются на тех же расстояниях от торцов соответствующих ригелей, что и отверстия и крепятся к пространственному каркасу по узлу:
401 × 164 пикс.     Открыть в новом окне  
Марка петли принимается в зависимости от нормативного усиления на одну петлю (равного половине массы ригеля) по таблице на стр. 12 серии 1.400-9.
Указания по проведению испытаний
Перед началом изготовления ригелей должны проводиться контрольные испытания нагружением в соответствии с ГОСТ8829-85.
Испытания ригелей проводятся с целью оценки их жесткости, трещиностойкости и прочности до исчерпания несущей способности.
Испытания ригелей пролетом 6 м следует производить в рабочем положении с приложением нагрузки в 8 –ми точках в соответствии со схемами, приведенными на листах 6-8.
Ригели пролетом 3 м могут испытываться по упрощенной схеме
- двумя сосредоточенными силами  , приложенными на ребре на расстоянии ¼ расчетного пролета (2400 мм)
Двухполочные ригели при испытании опирают на подвижную и неподвижную опоры, создаваемые с помощью катков диаметром не менее 40 мм. На катки необходимо устанавливать металлические прокладки из листа толщиной не менее 16 мм, прихватываемые сваркой к закладному изделию подрезки (рис.1)
Рис. 1 Узлы опирания двухполочных ригелей
393 × 212 пикс.     Открыть в новом окне  
Однополочные ригели при испытании опирают на металлические прокладки толщиной не менее 40 мм и приваривают к ним двумя фланговыми швами через закладную деталь подрезки. При этом прокладка должна быть заакерена так, чтобы исключить свободный поворот ригеля вокруг продольной оси (рис.2)
Рис. 2 Узлы опирания однополочных (и лестничных) ригелей
415 × 179 пикс.     Открыть в новом окне  
Испытания ригелей проводятся нагружением до проверяемого предельного состояния (по жесткости, трещиностойкости, прочности) контрольным нагрузками, приведенными в таблице на листе 4.
Для ригелей пролетом 6 м и в связи с тем, что исчерпание прочности нормальных сечений может наступить при контрольных нагрузках меньших, чем для наклонных сечений опорной зоны, предусмотрены две схемы загружений (см. листы 6…8):
- схема «А» для проверки жесткости, трещиностойкости и прочности нормальных сечений;
- схема «Б» для проверки трещиностойкости и прочности опорных зон по наклонным сечениям.
917 × 671 пикс.     Открыть в новом окне  
913 × 678 пикс.     Открыть в новом окне  
Схема испытания двухполочных ригелей по схеме А
932 × 674 пикс.     Открыть в новом окне  
Схема испытания двухполочных ригелей по схеме Б
923 × 679 пикс.     Открыть в новом окне  
Схема испытания однополочных и лестничных ригелей пролетом 6,0 м…(РОП4.56-…; РЛП4.56-…)
924 × 681 пикс.     Открыть в новом окне  

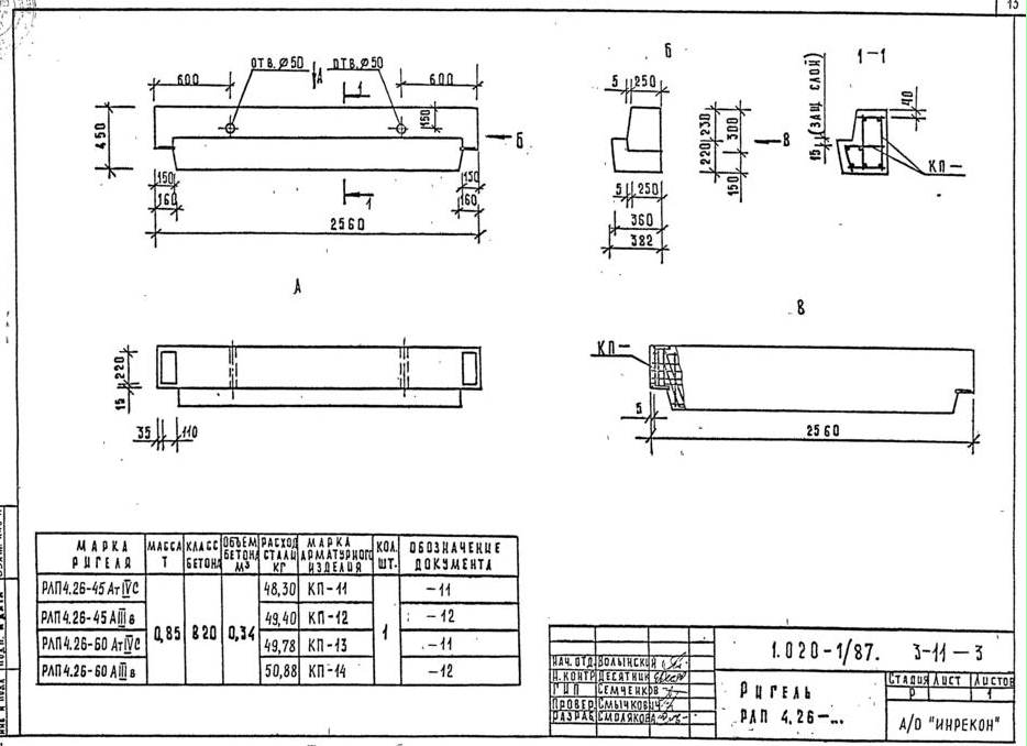
Ригель РДП 4.26-… - 11 стр

933 × 671 пикс.     Открыть в новом окне  

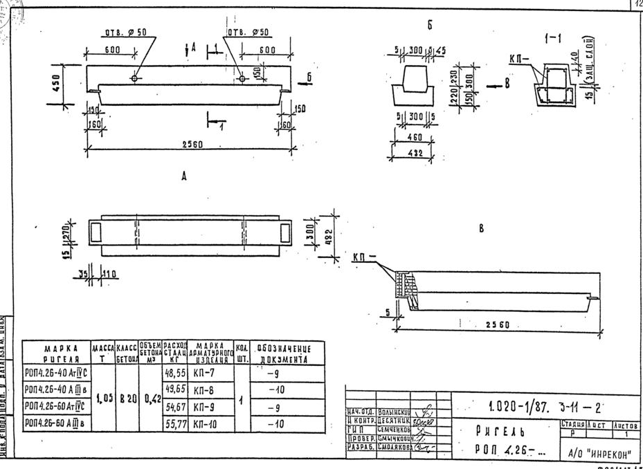
Ригель РОП 4.26-… - 12 стр

929 × 678 пикс.     Открыть в новом окне  

Ригель РЛП 4.26-… - 13 стр

934 × 678 пикс.     Открыть в новом окне  

Ригель РДП 4.56-… - 14 стр

929 × 682 пикс.     Открыть в новом окне  

Ригель РОП 4.56-… - 15 стр

931 × 671 пикс.     Открыть в новом окне  

Ригель РЛП 4.56-… - 16 стр

934 × 670 пикс.     Открыть в новом окне  

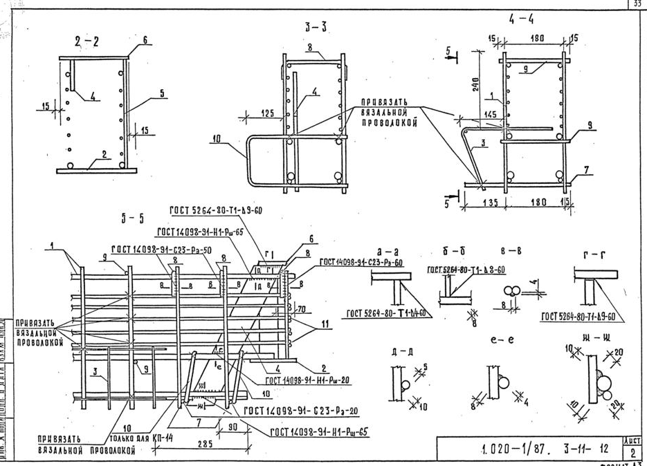
Каркас пространственный КП-1, КП-3, КП-5 - 17 стр

928 × 673 пикс.     Открыть в новом окне  
931 × 677 пикс.     Открыть в новом окне  
924 × 673 пикс.     Открыть в новом окне  

Каркас пространственный КП-2, КП-4, КП-6 - 20 стр

928 × 681 пикс.     Открыть в новом окне  
934 × 666 пикс.     Открыть в новом окне  
932 × 672 пикс.     Открыть в новом окне  

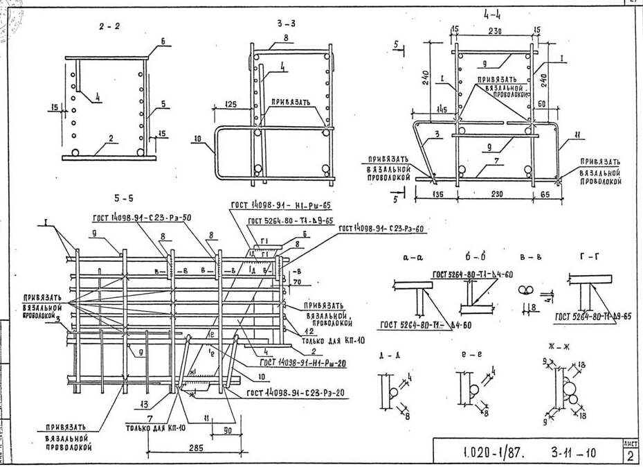
Каркас пространственный КП-7, КП-9 - 23 стр

933 × 664 пикс.     Открыть в новом окне  
927 × 676 пикс.     Открыть в новом окне  
928 × 675 пикс.     Открыть в новом окне  

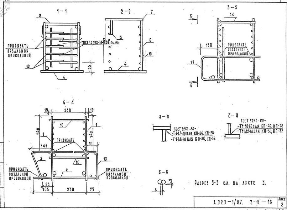
Каркас пространственный КП-8, КП-10 - 26 стр

925 × 673 пикс.     Открыть в новом окне  
929 × 674 пикс.     Открыть в новом окне  
930 × 675 пикс.     Открыть в новом окне  

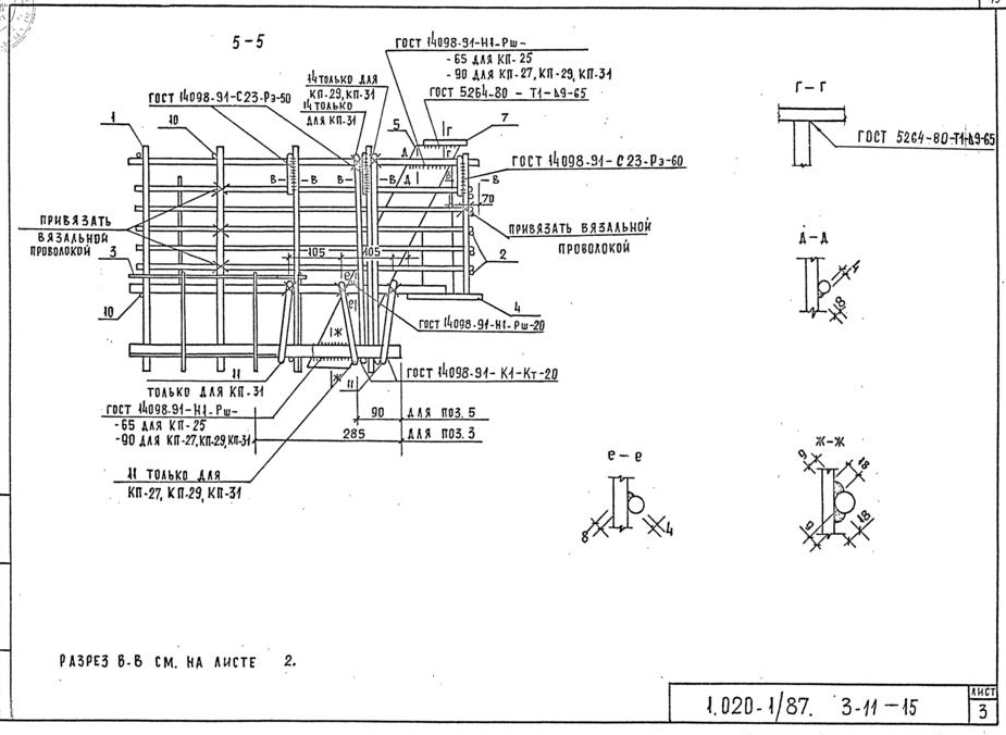
Каркас пространственный КП-11, КП-13 - 29 стр

939 × 679 пикс.     Открыть в новом окне  
924 × 670 пикс.     Открыть в новом окне  
921 × 664 пикс.     Открыть в новом окне  

Каркас пространственный КП-12, КП-14 - 32 стр

935 × 674 пикс.     Открыть в новом окне  
928 × 674 пикс.     Открыть в новом окне  
929 × 667 пикс.     Открыть в новом окне  

Каркас пространственный КП-15, КП-17, КП-19, КП-21, КП-23 - 35 стр

926 × 678 пикс.     Открыть в новом окне  
923 × 676 пикс.     Открыть в новом окне  
926 × 670 пикс.     Открыть в новом окне  

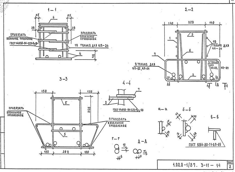
Каркас пространственный КП-16, КП-18, КП-20, КП-22, КП-24 - 38 стр

934 × 675 пикс.     Открыть в новом окне  
925 × 680 пикс.     Открыть в новом окне  
930 × 671 пикс.     Открыть в новом окне  

Каркас пространственный КП-25, КП-27, КП-29, КП-31 - 41 стр

926 × 679 пикс.     Открыть в новом окне  
925 × 674 пикс.     Открыть в новом окне  
925 × 676 пикс.     Открыть в новом окне  
926 × 676 пикс.     Открыть в новом окне  
926 × 668 пикс.     Открыть в новом окне  

Каркас пространственный КП-26, КП-28, КП-30, КП-32 - 46 стр

920 × 671 пикс.     Открыть в новом окне  
916 × 672 пикс.     Открыть в новом окне  
933 × 681 пикс.     Открыть в новом окне  
921 × 673 пикс.     Открыть в новом окне  
916 × 670 пикс.     Открыть в новом окне  

Каркас пространственный КП-33, КП-35- 51 стр

930 × 678 пикс.     Открыть в новом окне  
932 × 670 пикс.     Открыть в новом окне  
936 × 673 пикс.     Открыть в новом окне  

Каркас пространственный КП-34, КП-36- 54 стр

935 × 671 пикс.     Открыть в новом окне  
937 × 668 пикс.     Открыть в новом окне  
929 × 665 пикс.     Открыть в новом окне  

Ведомость расхода стали - 57 стр

919 × 675 пикс.     Открыть в новом окне  
917 × 669 пикс.     Открыть в новом окне  
928 × 672 пикс.     Открыть в новом окне  
921 × 667 пикс.     Открыть в новом окне  
924 × 667 пикс.     Открыть в новом окне  
920 × 671 пикс.     Открыть в новом окне  
927 × 673 пикс.     Открыть в новом окне  
919 × 682 пикс.     Открыть в новом окне (

Классы

Выбранные классы объекта Строительные материалы

Продукция

Подождите идет загрузка ....

Присоединяйтесь к рассылке!

Оформляя подписку, вы принимаете политику конфиденциальности ЖБИ-СНГ.ру