Выбран город Омск
Ваша корзина пуста

Серия 1.020-1/87 Конструкции каркаса межвидового применения для многоэтажных общественных зданий, производственных и вспомогательных зданий промышленных предприятий. Выпуск 3-7 Ригели высотой 450 мм для бетона класса В30 для опирания многопустотных плит п

Описание

Рабочие чертежи

Содержание – 2 стр

922 × 674 пикс.     Открыть в новом окне  

Технические требования – 3 стр

1.Общая часть
Настоящий выпуск содержит чертежи ригелей пролетом 3,0; 6,0 и 7,2 с высотой сечения 450 мм, предназначенных для опирания на них многопустотных плит перекрытий.
Ригели предназначены для применения в зданиях с неагрессивной средой. Ригели рассчитаны и запроектированы как конструкции 3-ей категории в соответствии с:
- рекомендациями НИИЖБ ГОССТРОЯ СССР («Технические условия проектирования двухполочных ригелей серии 1.020-1/83 со смешанным армированием (с арматурой класса АтV);
- рекомендациями ЦНИИЭП Т63 и ТК и НИИЖБ ГОССТРОЯ СССР («Рекомендации по расчету ригелей связевого каркаса с учетом совместной работы со сборным настилом», М. 1989г.)
- рекомендациями НИИЖБ ГОССТРОЯ СССР и ЦНИИЭП Т63 и ТК («Рекомендации по расчету ригелей связевого каркаса с учетом совместной работы со сборным настилом», М. 1989 г)
- рекомендациями ЦНИИЭП Т63 и ТК и НИИЖБ ГОССТРОЯ СССР («Методика расчета ригелей торцовых поперечников многоэтажных зданий на кручение с изгибом», М.1984 г.)
Расчетные предпосылки, указания по подбору ригелей приведены в выпуске 0-1.
Изготовление ригелей может производиться в оснастке для ригелей по серии 1.020-1/83. Указания по изготовлению, складированию и транспортировке приведены в выпуске 0-7 «Указания по заводской технологии изделий».
Предел огнестойкости ригелей составляет 2 часа.
Маркировка ригелей
Маркировка ригелей принята по ГОСТ 23009-78
Марка ригелей состоит из двух буквенно-цифровых групп. Первая группа содержит буквенные и цифровые обозначения. Буквенные обозначения характеризуют поперечное сечение ригеля:
РДП – ригель с двумя симметричными полками для опирания многопустотных плит с двух сторон;
РОП – ригель с двумя несимметричными полками для опирания многопустотных плит с одной стороны;
РЛП – ригель с одной полкой, устанавливаемый в лестничных клетках для опирания многопустотных плит, а также лестничных маршей;
Цифровые обозначения характеризуют габаритные параметры ригелей: первое число обозначает округленный размер высоты сечения в дм; второе число обозначает округленную длину ригеля в пм.
Вторая часть марки характеризует несущую способность ригеля и класс стали напрягаемой арматуры. Несущая способность ригеля характеризуется расчетной нагрузкой в сотнях килограмм – сил на погонный метр 9без учета собственного веса ригеля)
(4)-класс бетона ригелей не выше В30, а для ригелей РДП 4.56-110(4) и РДП4.68-70АтV(4) класс бетона В35.
Пример: РДП 4.68-70АтV(4) – ригель с двумя симметричными полками для опирания многопустотных плит высотой 450 мм, длиной 6760 мм, с нагрузкой 7,0 тс/пм, с предварительно напряженной арматурой класса АтУ.
2. Конструктивные данные
Двухполочные ригели пролетом 7,2 м запроектированы преднапряженными, остальные ригели – без предварительного напряжения.
Для преднапряженных ригелей применено смешанное армирование напрягаемой и ненапрягаемой арматурой из стали класса АтУ по ГОСТ 10884-81 (ненапрягаемые стержни обрываются по длине и крепятся к пространственному каркасу)
Продольная и поперечная ненапрягаемая арматура принята из стали класса А-III  мм может быть заменена на арматуру класса Ат-IIIс (термомеханически упрочненная сталь) без пересчета сечений арматуры. Арматуре сеток принята из проволоки класса ВрI по ГОСТ 6727-80.
Предварительное натяжение арматуры предусмотрено осуществлять электрическим способом. Величина предварительного напряжения в арматуре  и передаточная прочность бетона  приведены в таблице 1.(лист 6). Величина напряжения, контролируемого по окончании натяжения на упоры согласно п.1.24 СНиП 2.03.01-84* принимается равной (т.к. потери от деформации анкеров учитываются при определении значений полного удлинения арматуры, а потери от трения арматуры равны 0) Отпуск арматуры следует проводить плавно. Рекомендуется использовать для этого устройство для фиксации и плавного отпуска напрягаемой арматуры, разработанное в ЦНИИЭП торгово-бытовых зданий и туристических комплексов (авторское свидетельство 1206424)
Для изготовления ригелей применяются бетон классов В20, В30, В35. Значение нормируемой отпускной прочности назначается проектной организацией, осуществляющей разработку (привязку) проекта конкретного здания с учетом технологии изготовления конструкций, их транспортировки и монтажа, возможности дальнейшего нарастания прочности бетона в конструкции и сроков ее загружения полной расчетной нагрузкой. При этом, в соответствии с ГОСТ 13015.0-83 минимальное значение нормируемой отпускной прочности бетона на сжатие следует принимать не менее:
- 50 % от класса бетона по прочности на сжатие для ненапряженных ригелей;
- передаточной прочности бетона для ненапряженных ригелей.
Максимальное значение нормированной отпускной прочности бетона на сжатие следует принимать:
- 70 % от класса бетона по прочности на сжатие в теплый период года;
- 90 % от класса бетона по прочности на сжатие в холодный период года
Для распалубки и монтажа ригелей предусмотрены отверстия  В качестве технологического варианта можно применять монтажные петли по серии 1.400-9 «Унифицированные строповочные петли для подъема сборных железобетонных конструкций зданий и сооружений промышленных предприятий».
Петли устанавливаются на тех же расстояниях от торцов соответствующих ригелей, что и отверстия, и крепятся к пространственному каркасу по узлу:
413 × 148 пикс.     Открыть в новом окне  
Марка петли принимается в зависимости от нормативного усилия на одну петлю (равного половине массы ригеля) по таблице на стр. 12 серии 1.400-9.
Особенность продольного армирования ригелей является расположение продольных обрываемых стержней в одном уровне с необрываемыми.
При армировании опорных зон использовались наклонные и горизонтальные элементы из стальных пластин:
В двухполочных ригелях для пролетов 3,0 и 6,0 м- по авторскому свидетельству 2330627;
В двух полочных ригелях пролетом 7,2 м- по заявке в„– 45601246 (положительное решение от 28.11.89 г);
В однополочных и лестничных ригелях- по заявке в„– 4803858/33 от 16.02.90 г.
В состав армирования преднапряженных ригелей входят пространственный каркас, закладные изделия, сетка армирующая нижнюю грань ригеля, сетки полок, устанавливающая у торца полок, преднапряженные стержни, спирали и отдельные стержни. Ненапряженные ригели армируются одним пространственным каркасом, в состав которого входят все арматурные изделия ригеля.
При сборке пространственных каркасов крепление шпилек, объединяющих плоские каркасы в пространственный каркас следует производить сваркой с гарантированной прочностью в соответствии в соответствии с ГОСТ 10922-90.
Это требование особенно важно для каркасов однополочных и лестничных ригелей, так как это соединение для них является расчетным. Такое соединение можно осуществлять или с помощью контактно-точечной сварки (тип К-1 ГОСТ 14098-85), или с помощью дуговой сварки ручными прихватками (тип К-3 ГОСТ 14098-85), или с помощью дуговой сварки ручными швами (тип С23 ГОСТ 14098-85). При сварке ручными прихватками продольные стержни каркаса следует принимать из стал класса Ат-IIIс, либо из стали класса А-III марки 25Г2С
Крепление сеток полок к каркасу производить с помощью вязальной проволоки или контактно-точечной сварки.
Крепление гнутых стержней производить электродуговой сваркой протяженными швами соответственно указаниям на чертежах.
3. Указания по проведению испытаний ригелей.
3.1.Перед началом массового изготовления ригелей и в дальнейшем при внесении в них конструктивных изменений, а также в случаях изменения технологии производства или замены используемых материалов должны проводиться контрольные испытания ригелей с нагружением в соответствии с ГОСТ 8829-85.
3.2.Испытания ригелей проводятся с целью оценки их жесткости, трещино стойкости и прочности до исчерпывания несущей способности.
3.3.Испытания ригелей следует производить в рабочем положении с приложением нагрузки на полки в 8 точках в соответствии со схемами, приведенные на листах.
Ригели пролетом 3,0 м и могут испытываться по упрощенной схеме – двумя сосредоточенными силами  приложенными на ребре на расстоянии ¼ расчетного пролета (2400 мм)
3.4.Двухполочные ригели при испытании опирают на подвижную и неподвижную опоры, создаваемые с помощью катков диаметром не менее 40 мм. На катки необходимо устанавливать металлические прокладки из листа толщиной не менее 16 мм, прихватываемые сваркой к закладному изделию подрезки (см. рис.1)
399 × 193 пикс.     Открыть в новом окне  
3.5.Однополочные ригели при испытании опирают на металлические прокладки толщиной не менее 40 мм и приваривают к ним двумя фланговыми швами через закладное изделие подрезки. При этом прокладка должна быть заанкерена так, чтобы исключить свободный поворот ригеля вокруг продольной оси (рис. 2)
397 × 230 пикс.     Открыть в новом окне  
3.6.Испытания ригелей проводятся нагружением до проваренного предельного состояния (по жесткости, трещиностойкости и прочности) контрольными нагрузками, приведенные в таблицах 2, 3. При испытаниях следует учитывать нагрузки от нормативной массы силового оборудования (при этом суммарная нагрузка должна быть равна контрольной)
3.7. Для двухполочных преднапряженных ригелей пролетом 6,0 и 7,2 м с продольной рабочей арматурой класса Ат-У в связи с равнопрочностью нормальных и наклонных сечений принята нормальных и наклонных сечений принята одна схема загружения для проверки жесткости, трещиностойкости и прочности.
3.8.Для однополочных ригелей пролетом 6,0 м с продольной рабочей арматурой класса А-III с тем, что ичерпание прочности нормальных сечений может наступить при контрольных нагрузках меньших, чем для наклонных сечений опорной зоны, предусмотрены для схемы загружений (см.листах 7,8)
- схема «А» для проверки жесткости, трещиностойкости и прочности нормальных сечений;
- схема «Б» для проверки трещиностойкости и прочности опорных зон по наклонным сечениям.
3.9.Контрольные параметры для оценки жесткости и трещиностойкости ригелей приведены в таблицах 2 и 3 (листы 11,12)
В соответствии с рекомендациями НИИЖБ Госстроя СССР («Технические условия проектирования ригелей серии 1.020.-1/83 со смешанным армированием») для ригелей с арматурой класса Ат-У, эксплуатируемых в отапливаемых зданиях с неагрессивным режимом и влажностью воздуха не свыше 75%, принималось предельное кратковременное раскрытие нормальных трещин  которому соответствует контрольная величина раскрытия трещин 0,25 м (ГОСТ 8829-85 приложение 3, п.6)
3.10. Оценка прочности нормальных сечений ригелей производится с учетом следующих положений.
Конструкцию признают отвечающей установленным требованиям, если:
а) для двухполочных ригелей пролетом 7,2 м при действии контрольной нагрузки, определенной с коэффициентом С=1,4, не произошло раздробление бетона сжатой зоны в нормальном сечении при прогибе, менее чем в 1,5 раза превышающим прогиб от контрольной нагрузки по проверке жесткости;
б) для всех ригелей пролетом 3,0 ; 6,0 м и однополочных ригелей пролетом 7,2 м при действии контрольной нагрузки, определенной с коэффициентом С=1,25, не произошло раздробление бетона сжатой зоны в нормальном сечении при прогибе, менее чем в 1,5 раза превышающем прогиб от контрольной нагрузки по проверке жесткости.
В случае, если раздробление бетона сжатой зоны произошло при прогибе конструкции, менее чем в 1,5 раза превышающей прогиб при проверке жесткости, то величину контрольной нагрузки принимают при значении коэффициента С=1,6.
3.11.При проверке ригелей по прочности наклонных сечений конструкцию признают отвечающей установленным требованиям, если при действии контрольной нагрузки, определенной при значении коэффициента С=1,4 исчерпание ее несущей способности произошло вследствие текучести продольной растянутый продольной растянутой и(или) поперечной арматуры ранее раздробления бетона сжатой зоны над наклонной трещиной, что характеризуется:
а) для ригелей двухполочных пролетом 7,2 м шириной раскрытия наклонной трещины 0,8 мм и более;
б) для всех остальных ригелей шириной раскрытия наклонной трещины 1,5 мм и более.
Если указанные условия не выполняются, то контрольная нагрузка определяется при значении коэффициента С=1,6
3.12. Если при проверке прочности нормальных и наклонных сечений, отобранных для испытаний ригелей, разрушение произойдет при нагрузке меньше контрольной, то при их оценке следует руководствоваться положениями п.6.1.2. ГОСТ 8829-85
3.13. Отбор конструкций для испытаний, подготовка и проведение испытаний, состав необходимых данных принимается в соответствии с указаниями ГОСТ 8829-85.
Таблица 1
682 × 257 пикс.     Открыть в новом окне  
Схема испытания двухполочных ригелей по схеме А
925 × 684 пикс.     Открыть в новом окне  
Схема испытания двухполочных ригелей по схеме Б для ригелей пролетом 6 м (РДП4.56-)
920 × 669 пикс.     Открыть в новом окне  
Схема испытания однополочных и лестничных ригелей пролетом 6.0 м (РОП4.56-; РЛП4.56-)
923 × 682 пикс.     Открыть в новом окне  
Схема испытания однополочных ригелей пролетом 7,2 м (РОП4.68-)
920 × 666 пикс.     Открыть в новом окне  
Таблица 2
923 × 663 пикс.     Открыть в новом окне  
918 × 671 пикс.     Открыть в новом окне  
Таблица 3
917 × 678 пикс.     Открыть в новом окне  

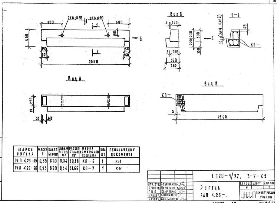
Ригель РДП4.26 – 16 стр

924 × 669 пикс.     Открыть в новом окне  

Ригель РОП4.26 – 17 стр

929 × 672 пикс.     Открыть в новом окне  

Ригель РЛП4.26 – 18 стр

915 × 672 пикс.     Открыть в новом окне  

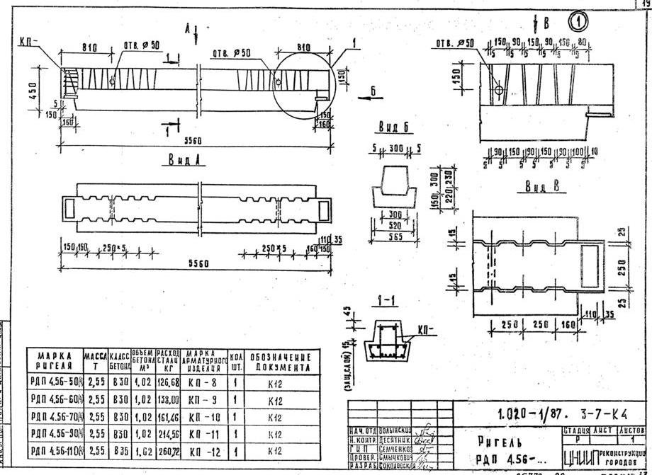
Ригель РДП4.56 – 19 стр

920 × 671 пикс.     Открыть в новом окне  

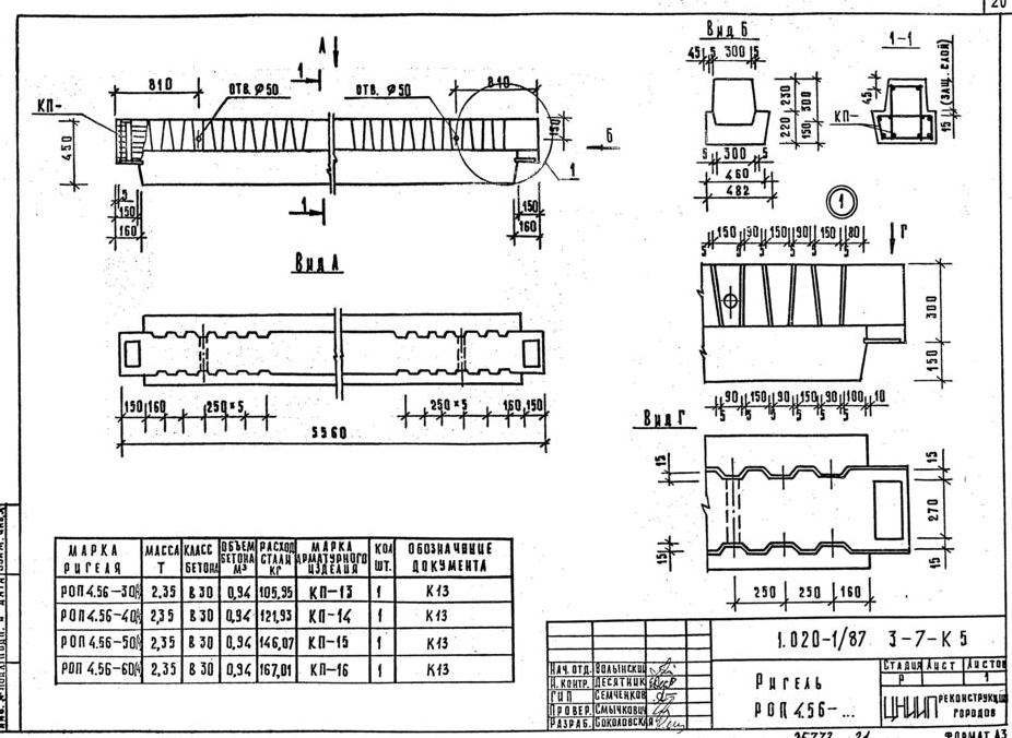
Ригель РОП4.56 – 20 стр

926 × 676 пикс.     Открыть в новом окне  

Ригель РЛП4.56 – 21 стр

906 × 667 пикс.     Открыть в новом окне  

Ригель РДП4.68 – 22 стр

902 × 677 пикс.     Открыть в новом окне  

Ригель РДП4.68 – 22 стр

902 × 677 пикс.     Открыть в новом окне  
920 × 669 пикс.     Открыть в новом окне  
934 × 668 пикс.     Открыть в новом окне  

Ригель РОП4.68 – 25 стр

912 × 675 пикс.     Открыть в новом окне  

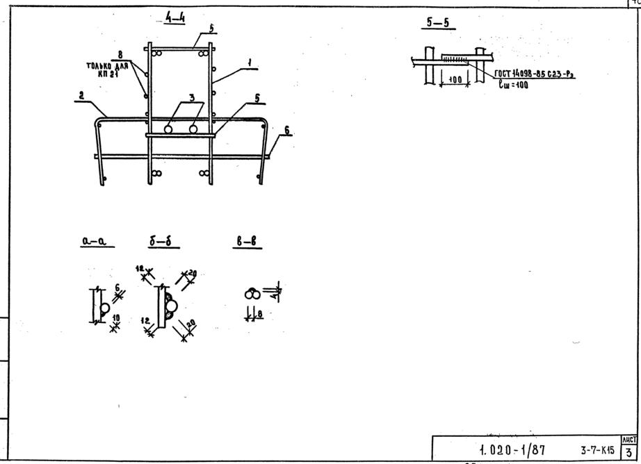
Каркасы пространственные КП-1, КП-2, КП-3 – 26 стр

911 × 667 пикс.     Открыть в новом окне  

Каркасы пространственные КП-1, КП-2, КП-3 – 27 стр

913 × 674 пикс.     Открыть в новом окне  
915 × 668 пикс.     Открыть в новом окне  

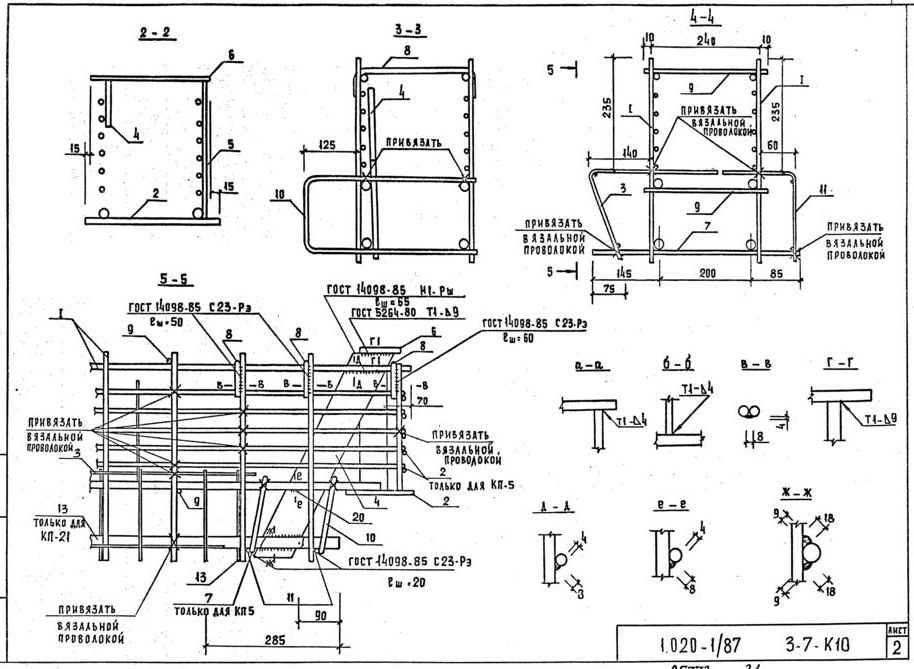
Каркасы пространственные КП-4, КП-5 – 29 стр

915 × 675 пикс.     Открыть в новом окне  
914 × 669 пикс.     Открыть в новом окне  
906 × 676 пикс.     Открыть в новом окне  

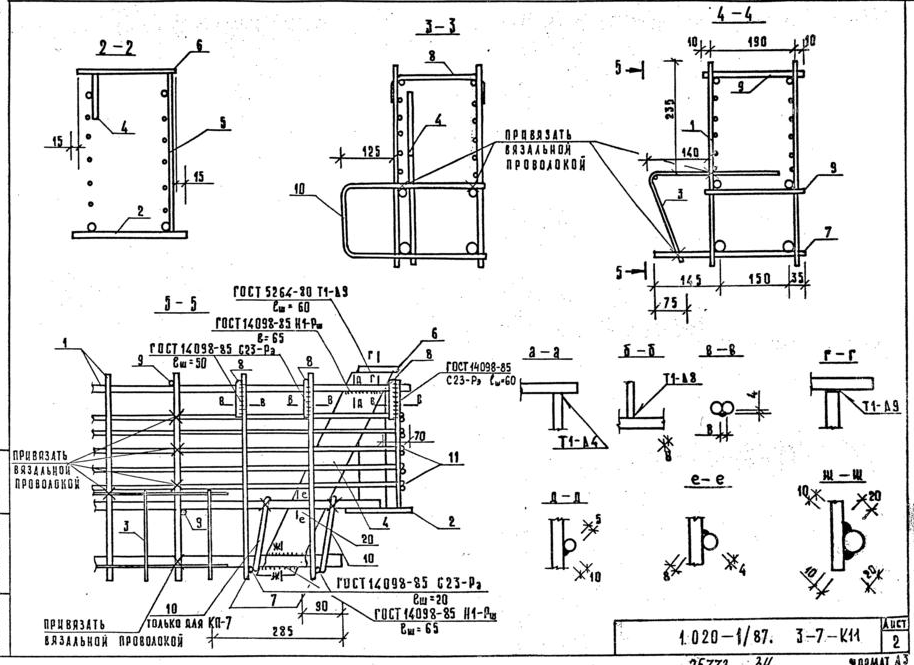
Каркасы пространственные КП-6, КП-7 – 32 стр

911 × 668 пикс.     Открыть в новом окне  
914 × 665 пикс.     Открыть в новом окне  
919 × 664 пикс.     Открыть в новом окне  

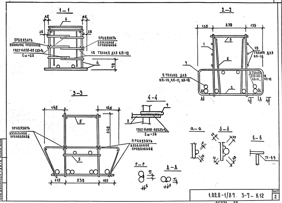
Каркасы пространственные КП-8, КП-9, КП-10, КП-11, КП-12 – 35 стр

922 × 656 пикс.     Открыть в новом окне  
924 × 666 пикс.     Открыть в новом окне  
917 × 674 пикс.     Открыть в новом окне  

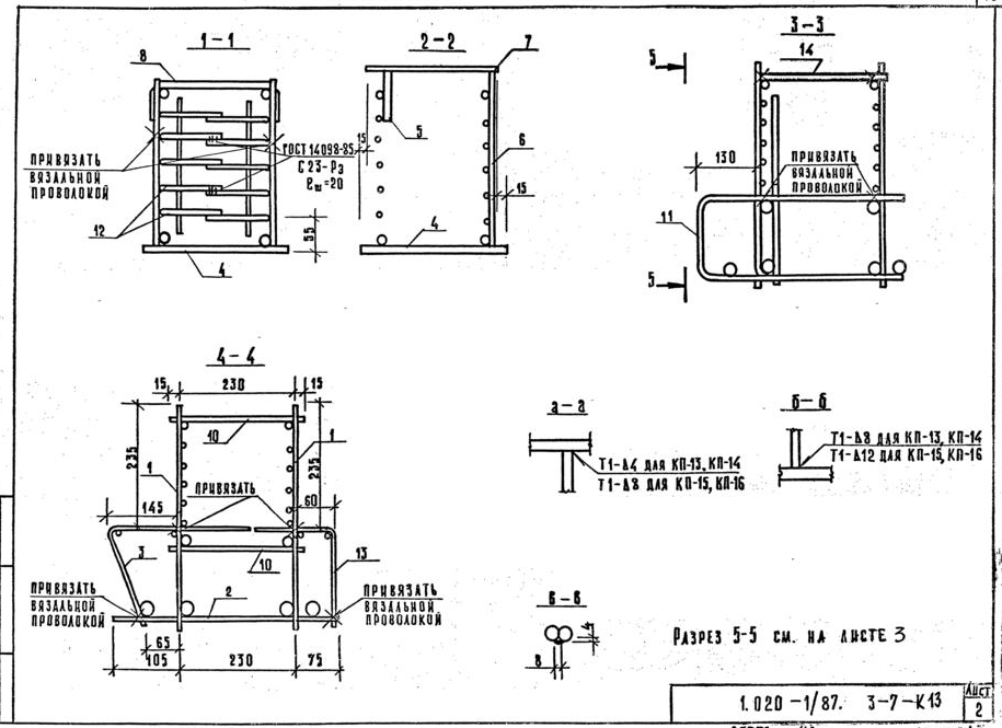
Каркасы пространственные КП-13, КП-14, КП-15, КП-16 – 38 стр

914 × 669 пикс.     Открыть в новом окне  
915 × 665 пикс.     Открыть в новом окне  
930 × 675 пикс.     Открыть в новом окне  
914 × 671 пикс.     Открыть в новом окне  
922 × 674 пикс.     Открыть в новом окне  

Каркасы пространственные КП-17, КП-18 – 43 стр

925 × 666 пикс.     Открыть в новом окне  
925 × 657 пикс.     Открыть в новом окне  
922 × 675 пикс.     Открыть в новом окне  

Каркасы пространственные КП-19, КП-20, КП-21 – 46 стр

935 × 675 пикс.     Открыть в новом окне  
909 × 670 пикс.     Открыть в новом окне  
922 × 668 пикс.     Открыть в новом окне  
923 × 677 пикс.     Открыть в новом окне  

Каркасы пространственные КП-22, КП-23 – 50 стр

914 × 670 пикс.     Открыть в новом окне  
921 × 671 пикс.     Открыть в новом окне  
917 × 667 пикс.     Открыть в новом окне  
918 × 671 пикс.     Открыть в новом окне  

Ведомость расхода стали – 54 стр

917 × 669 пикс.     Открыть в новом окне  
932 × 677 пикс.     Открыть в новом окне  
932 × 669 пикс.     Открыть в новом окне  
921 × 671 пикс.     Открыть в новом окне  
919 × 671 пикс.     Открыть в новом окне  
918 × 669 пикс.     Открыть в новом окне  
925 × 666 пикс.     Открыть в новом окне

Классы

Выбранные классы объекта Строительные материалы

Продукция

Подождите идет загрузка ....

Присоединяйтесь к рассылке!

Оформляя подписку, вы принимаете политику конфиденциальности ЖБИ-СНГ.ру