Выбран город Омск
Ваша корзина пуста

Серия 1.041.1-3 Сборные железобетонные многопустотные плиты перекрытий многоэтажных общественных зданий, производственных и вспомогательных зданий промышленных предприятий Выпуск 3.Плиты длиной 8650 мм армированные напрягаемой арматурой из стали классов

Описание

Рабочие чертежи
576 × 770 пикс.     Открыть в новом окне  

1.Техническое описание – 2 стр

1.1.Данный выпуск содержит рабочие чертежи многопустотных плит перекрытий длиной 8650 мм шириной 1490,1190, 940 мм.
1.2.Номенклатура плит содержит следующие конструкции:
- рядовые плиты шириной 1490 и 1190 мм;
- пристенные плиты шириной 1190 и 940 мм, устанавливаемые по крайним рядам колонн
- связевые плиты, шириной 1490 мм, устанавливаемые по средним рядам колонн
1.3. Плиты рассчитаны на вертикальные равномерно распределенные нагрузки (см. выпуск 0 настоящих рабочих чертежей).Пристенные и связевые плиты, кроме того, рассчитаны на восприятие горизонтального знакопеременного усилия в диске перекрытия, равного 980 кн.
1.4.Расчет плит произведен в соответствии с требованиями СНиП 2.03.01-84.
1.5.Плиты рассчитаны как шарнирно-опертые балки двутаврового сечения 3-ей категории трещиностойкости.
1.6.Маркировка плит принята в соответствии с требованиями ГОСТ 23009-78:
1.7.Марка плиты состоит из буквенно-цифровых групп (см. выпуск 0 п. 3.1)
Первая группа - наименование конструкции, вид пустот, длина и ширина в дециметрах;
Вторая группа – условная несущая способность плит без учета собственного веса, класс напрягаемой арматурой стали и вид бетона;
Третья группа – места установки плит в перекрытии каркаса здания, обозначаемая цифрами.
Пример условного обозначения марки рядовой плиты с круглыми пустотами диаметром 159 мм, длиной 8650 мм и шириной 1490 мм, условной несущей способностью 6,00 кПА, с напрягаемой арматурой сталью класса Ат-V, изготовленной из тяжелого бетона:
ПК86.15-6АтV;
То же связевой, устанавливаемой по средним рядам колонн:
ПК86.15-6АтV-2.
То же пристенной шириной 1190 мм, устанавливаемой по крайним рядам колонн:
ПК86.12-6АтV-1.
1.8.Предел огнестойкости плит – не ниже 0,75 часа.
1.9.При монтаже плиты перекрытий укладываются на слой цементного раствора толщиной 10 мм.

2.Технические требования

2.1.Бетон

2.1.1.Класс бетона должен приниматься в соответствии с указанным в номенклатуре (см. выпуск 0) и настоящими рабочими чертежами.
2.1.2.Средняя плотность бетона с учетом арматуры принята для тяжелого бетона -  .
2.1.3.Марка бетона по морозостойкости и водонепроницаемости назначается в конкретном проекте в соответствии с требованиями главы СНиП 2.03.01-84 в зависимости от природно-климатических условий района строительства и режима.
2.1.4.В конкретном проекте должны быть указаны также дополнительные требования к материалам для приготовления бетона указанных марок.

2.2.Арматура

2.2.1.В качестве предварительно напрягаемой арматуры принята сталь стержневая термомеханически и термически упрочненная периодического профиля классов Ат-V и Ат-IVC по ГОСТ 10884-81 (см. выпуск 0 п.5.2.1).
2.2.2. Верхняя и нижняя зоны плит армируются сварными сетками. На приопорных участках, в промежутках между пустотами устанавливаются каркасы.
В пристенных и связевых плитах на всю длину плит устанавливают каркасы. Материалы сеток и каркасов – обыкновенная арматурная проволока периодического профиля класса Вр-I по ГОСТ 6727-80 и стержневая арматура класса АIII по ГОСТ 5781-82.
2.2.3.Толщина защитного слоя бетона для предварительно напрягаемой арматуры-20 мм; для сеток верхней и нижней зон плит – 15 мм.
Значения ее действительных отклонений не должны превышать предельных, указанных в таблице 2 ГОСТ 13015.0-83.

2.3.Указания по изготовлению

2.3.1.При изготовлении плит необходимо выполнять требования ГОСТ 9561-89, ГОСТ 13015.0-83 и настоящей проектной документации, а также технологической документации, содержащий требования к изготовлению плит на всех стадиях производственного процесса.
2.3.2.Плиты изготавливаются по агрегатно-поточной технологии.
2.3.3.Предварительное напряжение стержневой арматуры предусмотрено электротермическим способом. Величины предварительного напряжения в рабочей арматуре приведены в таблице 1 выпуск 0.
2.3.4.В случае необходимости приварки коротышек в качестве временных анкеров к концам стержней термически упрочненной арматуры следует предусматривать мероприятия, предотвращающие перегрев основного металла стержней.
2.3.5.Марку стали необходимо принимать в соответствии с указаниями, приведенными в рабочих чертежах конкретного объекта.
2.3.6.Передаточная прочность бетона  , при которой производится отпуск натяжения арматуры, должна быть не менее 70% от проектного класса тяжелого бетона и не менее 80% для бетонов на пористых заполнителях (см. вып. 0 п.5.3.4).
2.3.7.Отпуск арматуры необходимо производить плавно, мгновенная передача усилий на бетон не допускается.

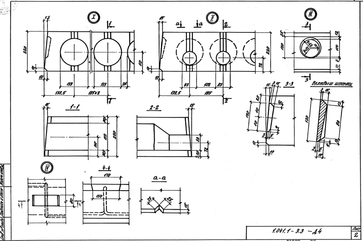
Плита рядовая ПК 86.15 – 5 стр

1280 × 1024 пикс.     Открыть в новом окне  
1172 × 765 пикс.     Открыть в новом окне  
1172 × 762 пикс.     Открыть в новом окне  
1182 × 785 пикс.     Открыть в новом окне  
1181 × 779 пикс.     Открыть в новом окне  

Ведомость расхода стали – 10 стр

1183 × 780 пикс.     Открыть в новом окне  

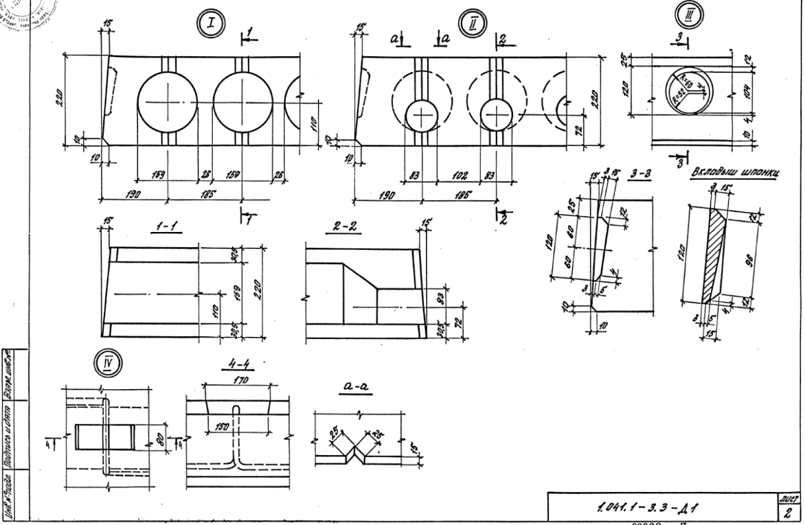
Плита связевая ПК 86.15 – 11 стр

1179 × 790 пикс.     Открыть в новом окне  
1183 × 779 пикс.     Открыть в новом окне  
1172 × 788 пикс.     Открыть в новом окне  
1187 × 785 пикс.     Открыть в новом окне  
1181 × 782 пикс.     Открыть в новом окне  

Ведомость расхода стали – 16 стр

1168 × 791 пикс.     Открыть в новом окне  

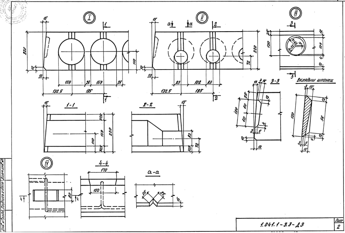
Плита рядовая ПК 86.12 – 17 стр

1180 × 791 пикс.     Открыть в новом окне  
1168 × 792 пикс.     Открыть в новом окне  
1159 × 781 пикс.     Открыть в новом окне  
1173 × 796 пикс.     Открыть в новом окне  
1176 × 784 пикс.     Открыть в новом окне  

Ведомость расхода стали – 22 стр

1174 × 786 пикс.     Открыть в новом окне  

Плита пристенная ПК 86.12 – 23 стр

1180 × 783 пикс.     Открыть в новом окне  
1177 × 783 пикс.     Открыть в новом окне  
1171 × 783 пикс.     Открыть в новом окне  
1179 × 785 пикс.     Открыть в новом окне  
1168 × 791 пикс.     Открыть в новом окне  

Ведомость расхода стали – 28 стр

1161 × 790 пикс.     Открыть в новом окне  

Плита пристенная ПК 86.9 – 29 стр

1280 × 1024 пикс.     Открыть в новом окне  
1166 × 788 пикс.     Открыть в новом окне  
1176 × 793 пикс.     Открыть в новом окне  
1175 × 788 пикс.     Открыть в новом окне  
1168 × 790 пикс.     Открыть в новом окне  

Ведомость расхода стали – 34 стр

1165 × 786 пикс.     Открыть в новом окне 

Классы

Выбранные классы объекта Строительные материалы

Продукция

Подождите идет загрузка ....

Присоединяйтесь к рассылке!

Оформляя подписку, вы принимаете политику конфиденциальности ЖБИ-СНГ.ру