Выбран город Омск
Ваша корзина пуста

Серия 1.241-1 Панели перекрытий железобетонные многопустотные. Выпуск 25. Предварительно напряженные панели длиной 1198 см, шириной 99 и 149см, армированные стержнями из стали класса Ат-IIIВ. Метод натяжения - механический.

Описание

 

570 × 738 пикс.     Открыть в новом окне  

Техническое описание – 2 стр

Железобетонные многопустотные панели перекрытий настоящего выпуска предназначены для общественных зданий и зданий административно-бытового назначения высотой не более 5 этажей со стенами из кирпича или крупных блоков из местных материалов, возводимых в обычных условиях строительства.
Панели перекрытия следует применять в условиях отсутствия воздействия неагрессивной среды на железобетонные конструкции.
Предел огнестойкости панелей перекрытий 1,35 часа, группа возгораемости панелей – несгораемые.
Данные конструкции согласно письму Госстроя СССР от 8 декабря 1981 г. в„–99-Д допускаются к изготовлению на предприятиях стройиндустрии только при отсутствии стали более высоких классов.

1.Марки и основные размеры

1.1.Маркировка конструкций принята по ГОСТ 23009-78. Марки панелей перекрытий состоят из буквенно-цифровых групп. Первая группа содержит:
а) обозначение типа конструкции (П – панель с круглыми пустотами);
б) определяющие габаритные размеры в дециметрах ( с округлением до целого числа)
Вторая группа:
а) несущую способность, соответствующую расчетной равномерно распределенной нагрузке (без учета собственной массы), выраженной в центнерах на м2;
б) класс напрягаемой арматуры;
в) вид бетона, выраженный буквенным обозначением (Т – тяжелый бетон)
Третья отражает конструктивные особенности панелей (усиление открытых торцов панелей бетонными вкладышами) и обозначается цифрой «1».
Пример маркировки: П 120.10.-4,5 АIIIвТ-1-панель перекрытия с круглыми пустотами длиной 11980 мм, шириной 990 мм под расчетную равномерно распределенную нагрузку (без учета собственной массы) 4,40 кПа  с напрягаемой арматурой класса АIIIв, изготавливаемая из тяжелого бетона с усиленным торцом.
1.2.Основные размеры панелей: длина 1198 см, ширина 99и 149 см, высота 30 см.
Номенклатура панелей представлена на листе 9.

2.Технические требования и расчетные данные

2.1.Панели изготовлять в соответствии с требованиями ГОСТ 9561-76 по агрегатно-поточной или конвейерной технологии.
2.2.Изготовление панелей предусмотрено с открытыми торцами и с усилением открытых торцов панелей (заделка пустот) бетонными вкладышами.
Торцы панелей с выходным отверстием малого диаметра, образуемым при формировании, укладываются на стену, несущую большую нагрузку.
Применение панелей с открытым торцом допускается в тех случаях, когда величина напряжений на уровне верхней плоскости панелей не превышает 2,1 мПа 22кгс/см2.
При больших напряжениях открытые торцы усиливаются в заводских условиях заделкой бетонными вкладышами.
Заделку пустот производить непосредственно после извлечения пуансонов, до пропаривания панелей, обеспечить плотное примыкание вкладышей.
Бетонные вкладыши  202 мм длиной 150 мм должны быть изготовлены из бетона той же марки, что и панели.
Допускаемые напряжения от нагрузок на опорные торцы могут быть приняты: при глубине опирания 10 см не более 4,9 мПа (50 кгс/см2), при глубине опирания 25 см не более 3,4 мПа (35 кгс/см2).
При промежуточных значениях глубины опирания панелей величины напряжений принимаются по интерполяции.
Армирование панелей с усиленными торцами принять то же, что и для панелей, изготавливаемых без вкладышей.
2.3.Панели запроектированы на 3-и равномерно распределённые нагрузки, приложенные к изделию.
Состав нагрузок без учета собственной массы приведен в таблице
510 × 155 пикс.     Открыть в новом окне  
Собственная масса панелей: расчетная – 4,60 кПа (470 кгс/м2), нормативная – 4,15 кПа (425 кгс/м2).
2.4.Расчет панелей произведен в соответствии с требованиями главы СНиП II-21-75 с учетом изменений и дополнений, введенных в действие постановлением Госстрой СССР от 10 июля 1980 г.в„–99, от 19 марта 1981 г. в„– 41 и от 11 мая 1981 г.в„– 67.
2.5.Панели запроектированы по 3-ей категории требований, предъявляемых к трещиностойкости конструкций.
2.6.Панели изготовлять из тяжелого бетона проектной марки по прочности на сжатие М350.
Передаточную прочность бетона к моменту отпуска натяжения арматуры принять равной 70% от проектной марки бетона М350.
Завод-изготовитель должен гарантировать получение 100% прочности бетона к 28-дневному возрасту.
2.7.При производстве работ в зимнее время и в других случаях, когда по условиям возведения зданий не может быть обеспечено приращение прочности бетона, поставщик обязан поставлять панели с прочностью бетона не ниже 100% проектной.
2.8.В качестве напрягаемой арматуры принята сталь стержневая термически упрочненная периодического профиля класса АIIIв с контролем удлинения и напряжения
215 × 20 пикс.     Открыть в новом окне  
2.9.Предварительное напряжение арматуры осуществлять электротермическим натяжением стержней до бетонирования с передачей усилий на упоры форм.
2.10.Максимальное значение начального предварительного напряжения принять  ; допустимая величина отклонения предварительного напряжения равна 27 мПа (275 кгс/м2).
Величина предварительного напряжения перед бетонированием 495 кПа (5030 кгс/см2).
2.11.Заготовку арматуры производить в соответствии с «Руководством по технологии изготовления предварительно напряженных железобетонных конструкций» (Москва, Стройиздат, 1975 г.)
2.12. Длина натягиваемых стержней на рабочих чертежах показана длине панелей без учета длины выпусков для захватов. Длину готовых натягиваемых стержней определять с учетом захватных приспособлений, применяемых на заводе.
2.13.Концы напрягаемой арматуры должны быть защищены слоем раствора не менее 5 мм.
2.14.На опорных участках панелей установлены корытообразные опорные сетки для восприятия местных напряжений в зоне заанкеривания напрягаемых стержней; поверху установить плоские сетки для восприятия усилий частичного защемления.
2.15.По всей длине верхней зоны панелей установить сварную сетку.
2.16.Плоские каркасы и сварные сетки выполнять из арматурной проволоки периодического профиля Вр-I (ГОСТ 6727-80).
2.17.Арматурные изделия запроектированы из условия изготовления их на автоматических линиях.
Сварку сеток производить с нормируемой прочностью в соответствии с требованиями ГОСТ 10922-75.
2.18.Подъемные петли выполнять из стали класса А-I марок ВСт3сп2 и ВСт3пс2 (ГОСТ 380-71*). В случае монтажа панелей при температуре – 40 МЉС запрещается применять сталь марок ВСт3пс2.
2.19.Нижняя, потолочная поверхность панелей должна быть гладкая, подготовленная под окраску.
2.20.Глубина опирания панелей должна быть не менее 120 мм по всей ее ширине.
2.21.Швы между панелями заделать бетоном марки 200 или цементным раствором марки 200.

3.Правила приемки

3.1.Приемку и паспортизацию панелей производить в соответствии с требованиями ГОСТ 13015.3-81, ГОСТ 9561-76.
3.2.Отклонения размеров толщины защитного слоя бетона, отклонения от проектных размеров, а также внешний вид и качество поверхностей изделий должны соответствовать требованиям ГОСТ 13015.3-81, ГОСТ 356-76.

4.Маркировка, хранение и транспортирование

4.1.Маркировку, хранение и транспортирование панелей производить в соответствии с требованиями ГОСТ 13015.2-81, ГОСТ 9561-76.
4.2.Подъем панелей при транспортировании и монтаже осуществлять с помощью самобалансирующих траверс за четыре петли.
4.3.Места опирания панелей при складировании и транспортировании принимаются на расстоянии 500 мм от торцов по всей ширине панели.

5.Испытания

5.1.Испытания и оценку прочности, жесткости и трещиностойкости панелей следует производить по данным таблиц 1-3 (лист 6- 8) и в соответствии с требованиями ГОСТ 8829-77.
При испытании панелей с усиленными торцами использовать данные этих же таблиц.
Таблица 1. Проверка прочности
1037 × 697 пикс.     Открыть в новом окне  
Таблица 2. Проверка трещиностойкости; Таблица 3. Проверка жесткости
1028 × 699 пикс.     Открыть в новом окне  
1028 × 699 пикс.     Открыть в новом окне  
Номенклатура панелей
1022 × 686 пикс.     Открыть в новом окне  

Панель перекрытия П120 – 9 стр

991 × 710 пикс.     Открыть в новом окне  
998 × 710 пикс.     Открыть в новом окне  

Панель перекрытия П120 Сборочный чертеж – 10 стр

1022 × 699 пикс.     Открыть в новом окне  
1025 × 698 пикс.     Открыть в новом окне  

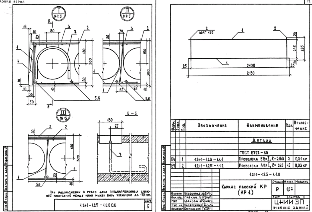
Каркас плоский КР1 – 12 стр

1035 × 702 пикс.     Открыть в новом окне  

Сетка арматурная С (С1,С2) – 13 стр

699 × 504 пикс.     Открыть в новом окне  

Сетка арматурная С (С1,С2) Сборочный чертеж

506 × 694 пикс.     Открыть в новом окне  

Сетка арматурная С3; Сетка арматурная С4 – 14 стр

1039 × 706 пикс.     Открыть в новом окне  

Сетка арматурная С5 – 15 стр

511 × 702 пикс.     Открыть в новом окне  

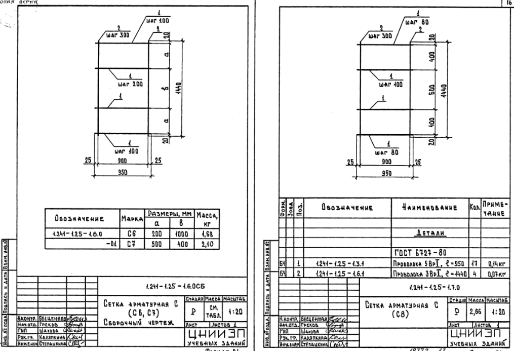
Сетка арматурная С (С6,С7)

694 × 510 пикс.     Открыть в новом окне  

Сетка арматурная С (С6,С7) Сборочный чертеж; Сетка арматурная С8 – 16 стр

1015 × 693 пикс.     Открыть в новом окне  

Сетка арматурная С (С9,С10) – 17 стр

698 × 504 пикс.     Открыть в новом окне  

Сетка арматурная С (С9,С10) Сборочный чертеж

509 × 687 пикс.     Открыть в новом окне  

Петля строповочная П (П1,П2) – 18 стр

495 × 686 пикс.     Открыть в новом окне  

Ведомость расхода стали

504 × 693 пикс.     Открыть в новом окне  

Ведомость расхода материалов – 19 стр

1029 × 699 пикс.     Открыть в новом окне  
1017 × 692 пикс.     Открыть в новом окне (

Классы

Выбранные классы объекта Строительные материалы

Продукция

Подождите идет загрузка ....

Присоединяйтесь к рассылке!

Оформляя подписку, вы принимаете политику конфиденциальности ЖБИ-СНГ.ру